Skip to content

Faculty of Pharmacy

Location
Granada, ES
Typology
Education
Date
2006–2013
Size
57,500 sqm

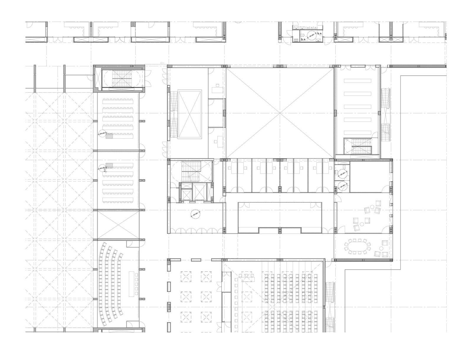
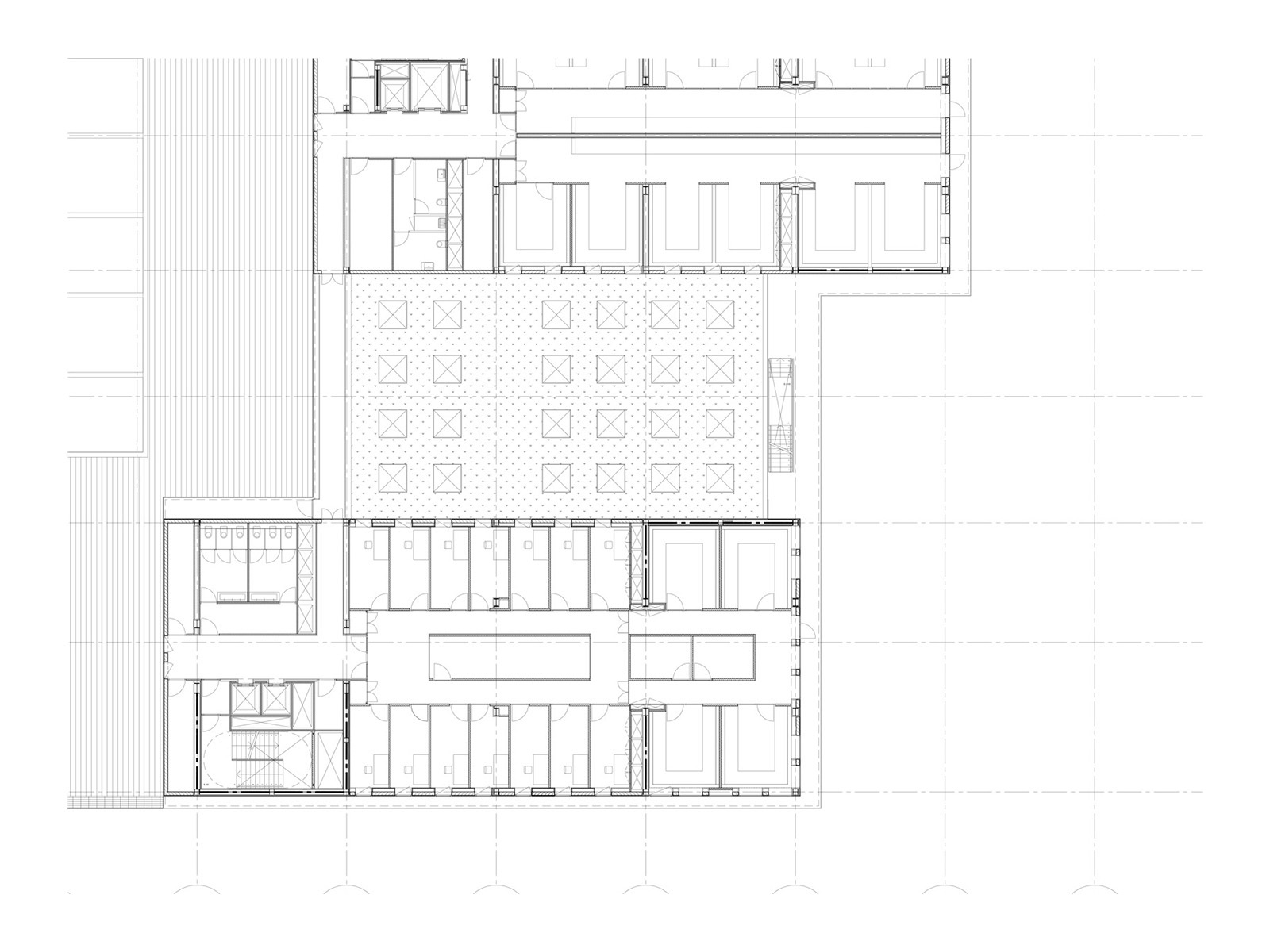
The pharmaceutical faculty is the largest building on the University of Granada medical campus. It is one of six projects developed in accordance with the urban development plan created by Cruz y Ortiz. It offers bright cool spaces designed around Granada’s climate using verandas, patios, and a double façade system. A clean layout involving horizontal and vertical connections around a central courtyard creates clear separations in the programme of uses. The educational programme is organized in the base around the large, covered patio. Laboratories and offices are situated in three linked towers.

Energy efficiency and maintenance-friendly design played an important role in the development process, alongside considerations of efficiency, flexibility, and clarity. The patio and the façade employ innovative sustainability measures. The relatively large amount of surface glass and the ceramic veil that envelopes the building allow an agreeable amount of daylight in while tempering the heat, creating a comfortable space.

Info

Location
Granada, ES
Date
2006–2013
Size
57,500 sqm
Client
University of Granada
Team
Aksel Coruh, Carl Greveling, Dario Fernandez, Dikkie Scipio, Dongzhu Chu, Enrico Arbizzani, Francesca Aulicino, Hagar Zur, Ismael Planelles Naya, Jan Teunis ten Kate, Kees Kaan, Monika Konrad, Noëmi Vos, Paolo Faleschini, Renata Gilio, Sebastian van Damme, Sofia Santos, Vincent Panhuysen, Walter Hoogerwerf, Yaron Tam