Skip to content

Education Centre University of Groningen

Location
Groningen, NL
Typology
Education
Date
2019–2024
Size
12,250 sqm

Groningen, the largest city in the northern Netherlands, hosts over 60,000 students and is home to the Healthy Ageing Campus. The Education Centre of Groningen is the first building in a planned series of facilities on the campus, uniting students, researchers, clinics, and industry to advance healthy ageing research and innovation. The facility now supports over 2,000 students and staff from the University Medical Center Groningen and the Faculty of Science and Engineering.

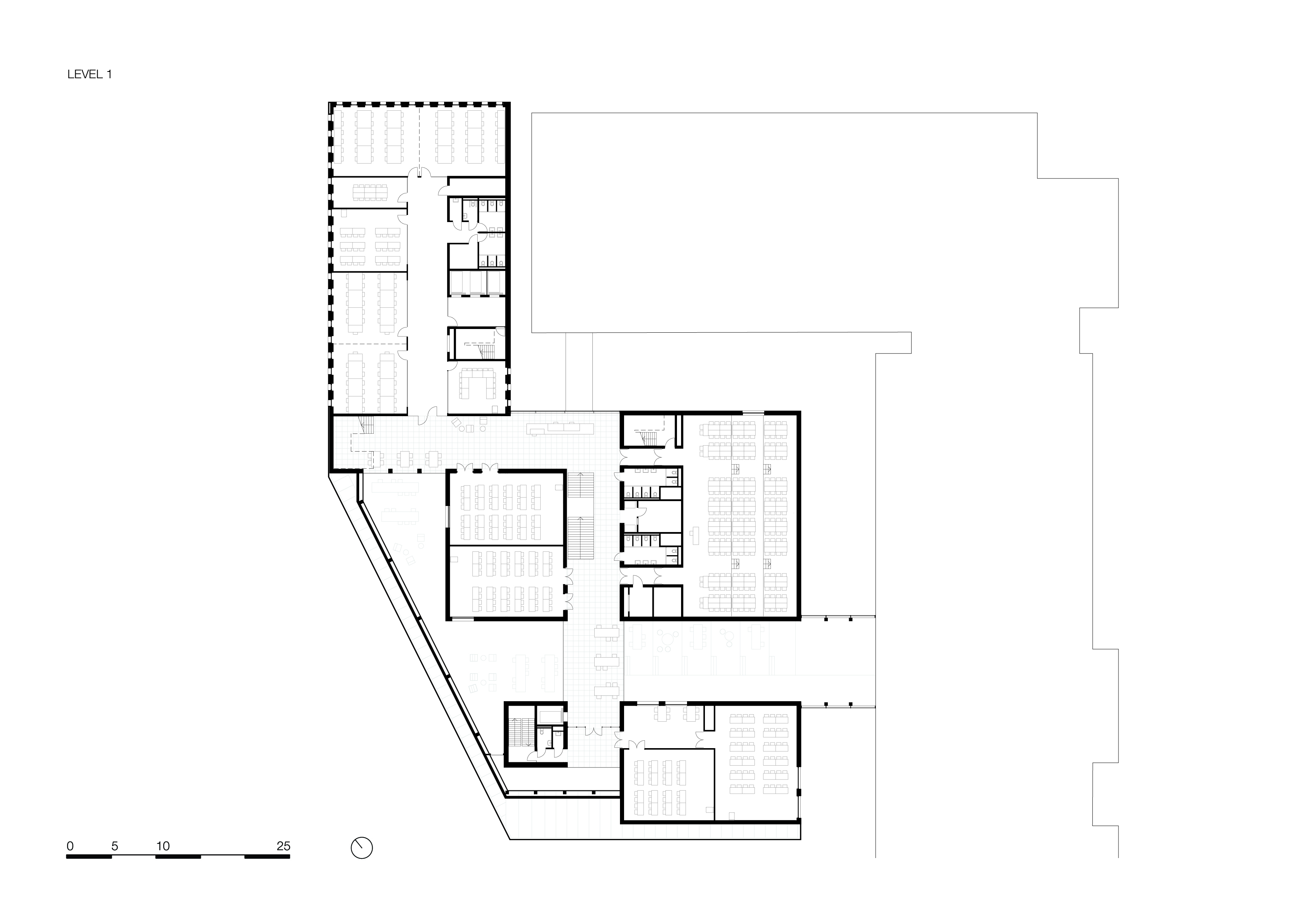
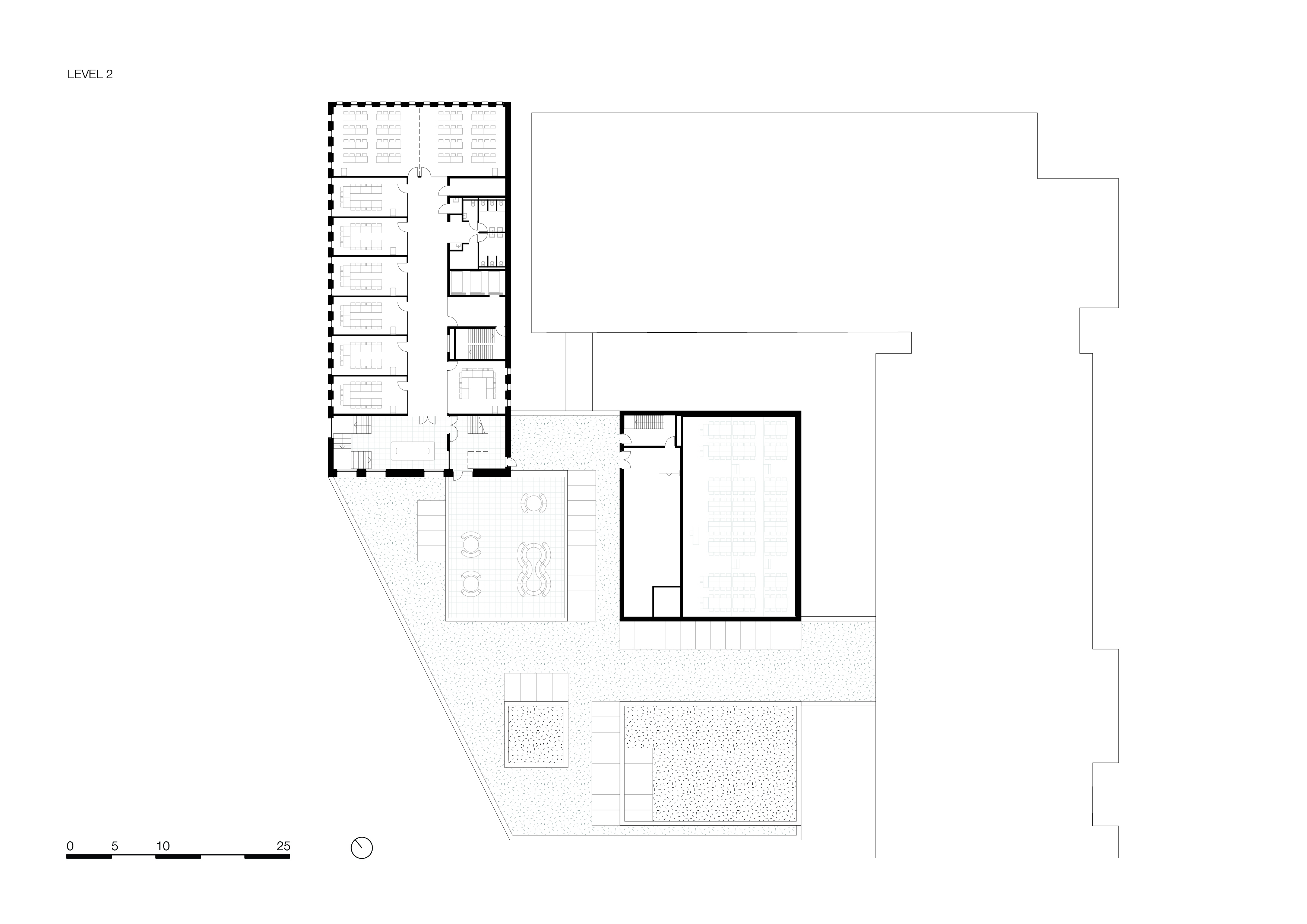
Strategically positioned on a central axis, the building reestablishes the connection between the campus and Groningen’s historic centre. The design includes patio gardens and public spaces, extending the outdoor environment indoors and ensuring fluid circulation. The education centre’s design features five connected volumes, enhancing accessibility through horizontal and vertical foyers, connecting the interior learning spaces with each other and the outdoors. The building’s flexible design allows for adaptable spaces, with lecture halls featuring moveable platforms and a grid system supporting future adjustments. Sustainability and flexibility are central to the project. Regionally sourced light sandy bricks, oak frames, and concrete define the space, creating a robust yet welcoming atmosphere. Natural materials were selected for their longevity, ensuring the building evolves gracefully over time while maintaining a healthy and inspiring environment for students and researchers.

Info

Location
Groningen, NL
Date
2019–2024
Size
12,250 sqm
Client
University of Groningen
Team
Aleksandar Hrib, Alexis Oh, Dikkie Scipio, Guilherme Miranda, Hana Mohar, Javier Cuartero, Kees Kaan, Koen Bosman, Lisa Goes, Luuk Dietz, Narine Gyulkhasyan, Raluca Firicel, Sebastian van Damme, Theodossis Montarnier, Vincent Panhuysen, Wouter Langeveld
Photography
Marcel Ijzerman, Sebastian van Damme
Landscape designer
Felixx Landscape Architects & Planners
General contractor
Aannemingsmaatschappij Hegeman, De Groot Installatiegroep
Construction advisor
abt Wassenaar
Infrastructure
WMR
Mechanical and plumbing engineer
De Groot Installatiegroep
Electrical installation engineer
Harwig Installatietechniek
Technical installations advisor
Sweegers en de Bruijn
Building physics, fire control and acoustics advisot
Peutz