Skip to content

UFSCAR Library – Campus Lagoa do Sino

Location
Buri, São Paulo, BR
Typology
Education
Date
2024–2025
Size
3,134 SQM

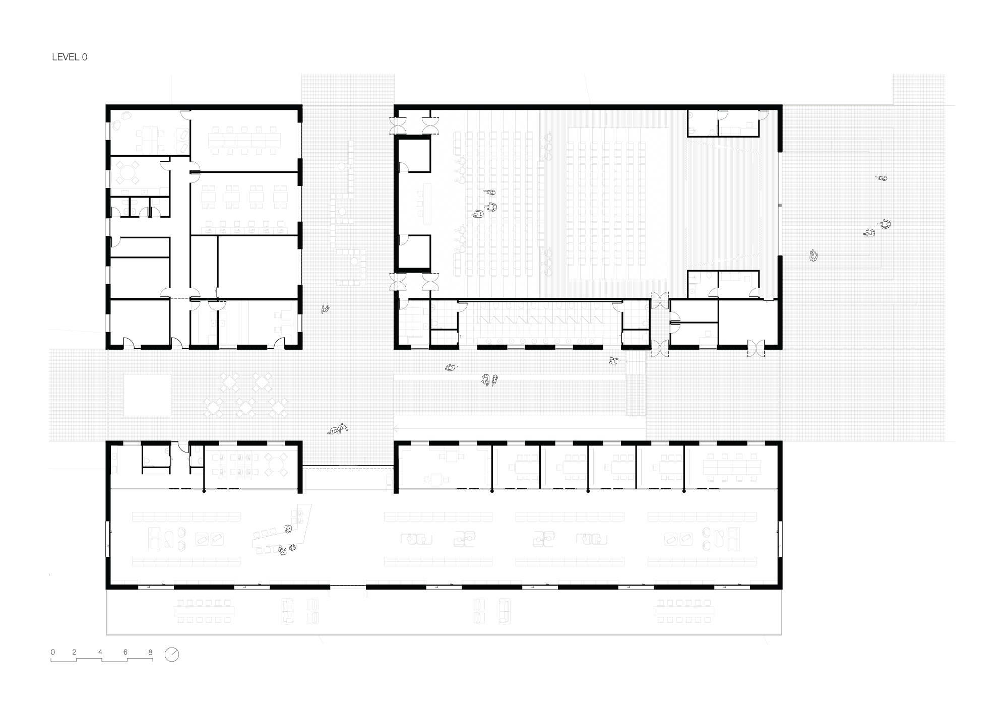
UFSCAR Library – Campus Lagoa do Sino in São Paulo, Brazil, serves as the new heart of the campus, bringing together a public plaza, library, auditorium, and the university’s administrative offices. Its design blends enclosed volumes with open-air spaces, encouraging social interaction and enriching campus life. A generous roof structure, detached from the building, creates a 1.5-meter air cushion and allows natural ventilation to maintain thermal comfort throughout the day. The building combines traditional rammed earth and timber, uniting time-honoured vernacular techniques with contemporary architectural solutions. Rammed earth—a millennia-old construction method—involves compacting layers of damp soil between wooden forms to create thick, stable walls with outstanding thermal and acoustic performance.

Using locally sourced, low-impact materials makes it an inherently sustainable approach, celebrating ancestral building knowledge while fostering cultural identity. The timber structure, used beams, and roofing complement the solidity of the rammed earth with lightness and modularity. The only concrete elements are bracing beams, which reinforce the constructional clarity. Generous timber window frames enhance material coherence and provide environmental comfort along with abundant natural light. Responsibly sourced wood contributes to the building’s warm aesthetic and emphasises its artisanal and ecological design principles. The integration of these elements results in an architecture deeply attuned to its surroundings, minimising carbon emissions, honouring local traditions, and delivering lasting, efficient comfort.

Info

Location
Buri, São Paulo, BR
Date
2024–2025
Size
3,134 SQM
Client
Foundation for Institutional Support to Scientific and Technological Development
Team
Fernanda Matos, Gonzalo Villanueva, Marco Peixe, Natália Poli, Renata Gilio, Ricardo Marmorato, Vincent Panhuysen, Vitor Silva e Souza
Local architect
Triptyque
Structural engineer
Inner Engenharia + Timbau Estruturas
MEP engineer
AZINARI Engenharia
HVAC engineer
EPT Engenharia
Electrical engineer
Ramoska e Castellani
Geotechnics advisor
GBX Engenharia
Acoustics advisor
Akkerman Alcoragi
Financial advisor
CUBO Orçamento e Obras
Visualizations
PF visual
Signage and wayfinding
Estúdio Vaca