Skip to content

Netherlands American Cemetery Visitor Center

Location
Margraten, NL
Typology
Culture
Date
2018–2023
Size
600 sqm

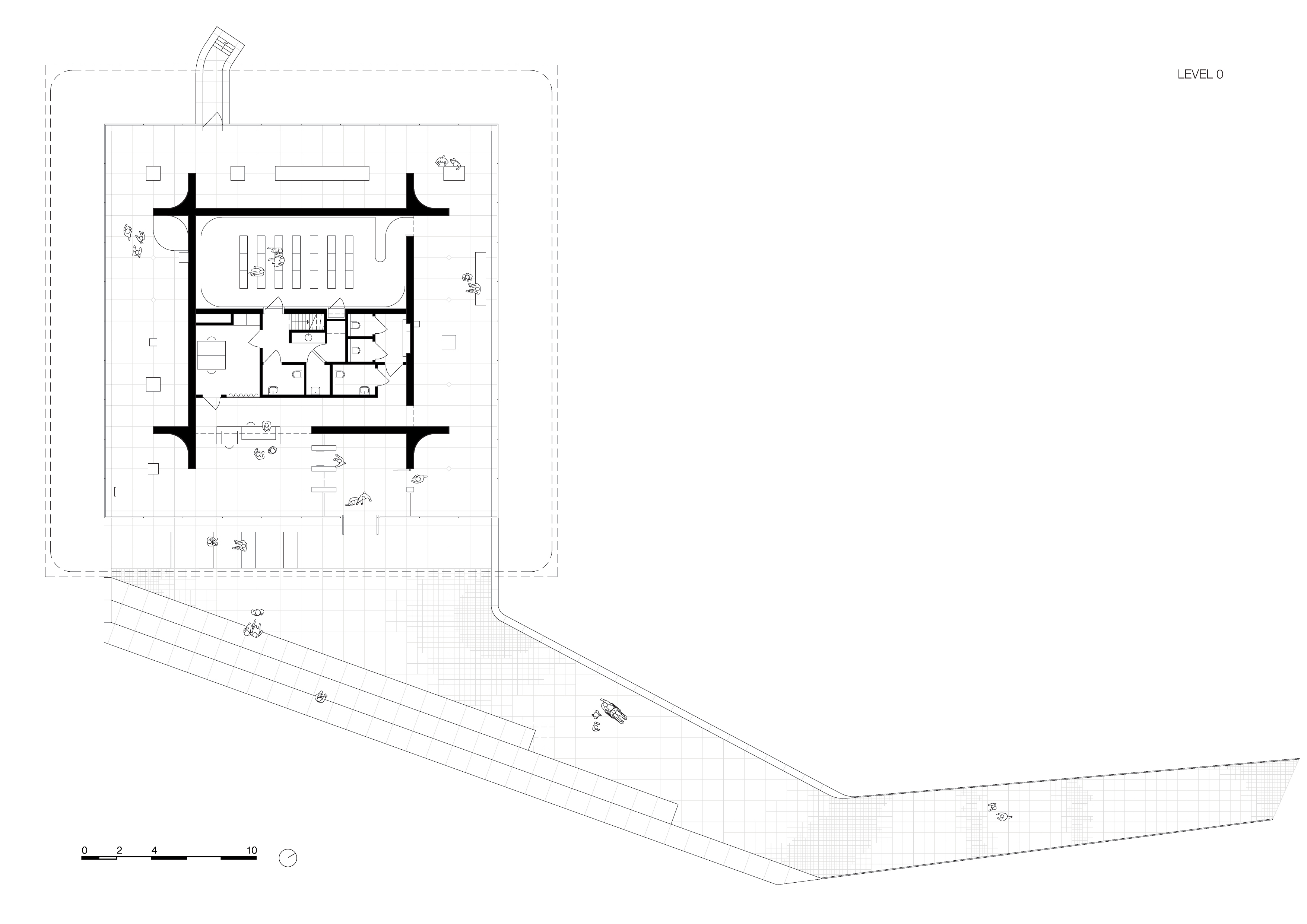
The Visitor Centre is part of the monumental ensemble of the Netherlands American Cemetery. Situated in the Limburg region in Margraten, it provides visitors with a dedicated place for both learning and reflection, amid the tranquillity of the surrounding landscape.

With its entry plaza defined by rows of stone seating, the building claims its own space in the scenically choreographed setting, yet blends harmoniously into the greater whole. The plaza and pathway are recessed into the landscape and slope gently downward. The slow descent leads the visitor down to the protective canopy of the Visitor Centre, which is made of aesthetic layered concrete.

Nestled within the frame of the fascia, the building is sunken into the sloping landscape, with the floor resting below ground level. Glass walls offer a unique panoramic perspective, allowing visitors to contemplate the surrounding topography and scattered trees from a lower vantage point.

At the centre of the structure, the walls form a square that supports the weight of the fascia. Inside this square is an auditorium, clad in warm American walnut panelling, as well as service areas and restrooms, while the exterior walls of the square provide exhibition space.

Info

Location
Margraten, NL
Date
2018–2023
Size
600 sqm
Client
American Battle Monuments Commission
Team
Adam Kelly, Alessandro Arcangeli, Alexis Oh, Alice Colombo, Andrea Gentilini, Bas Barendse, Claudio Zampaglione, Dikkie Scipio, Edoardo Mancini, Frane Stancic, Kees Kaan, Nicki van Loon, Rita Alessio, Sebastian van Damme, Thomas Hagemeijer, Vincent Panhuysen
Photography
Simon Menges