Skip to content

The Stack

Location
Amsterdam, NL
Typology
Residential
Date
2017–2024
Size
13,000 sqm

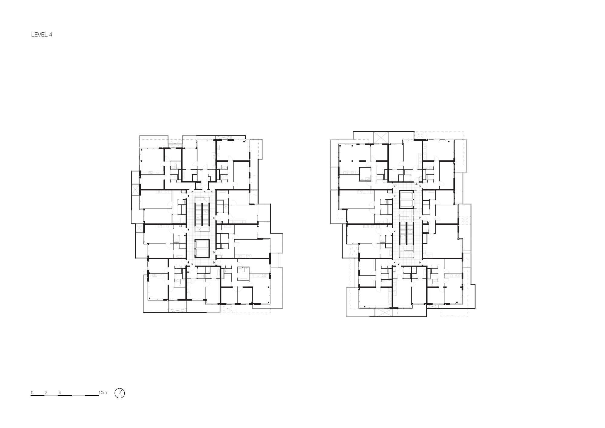
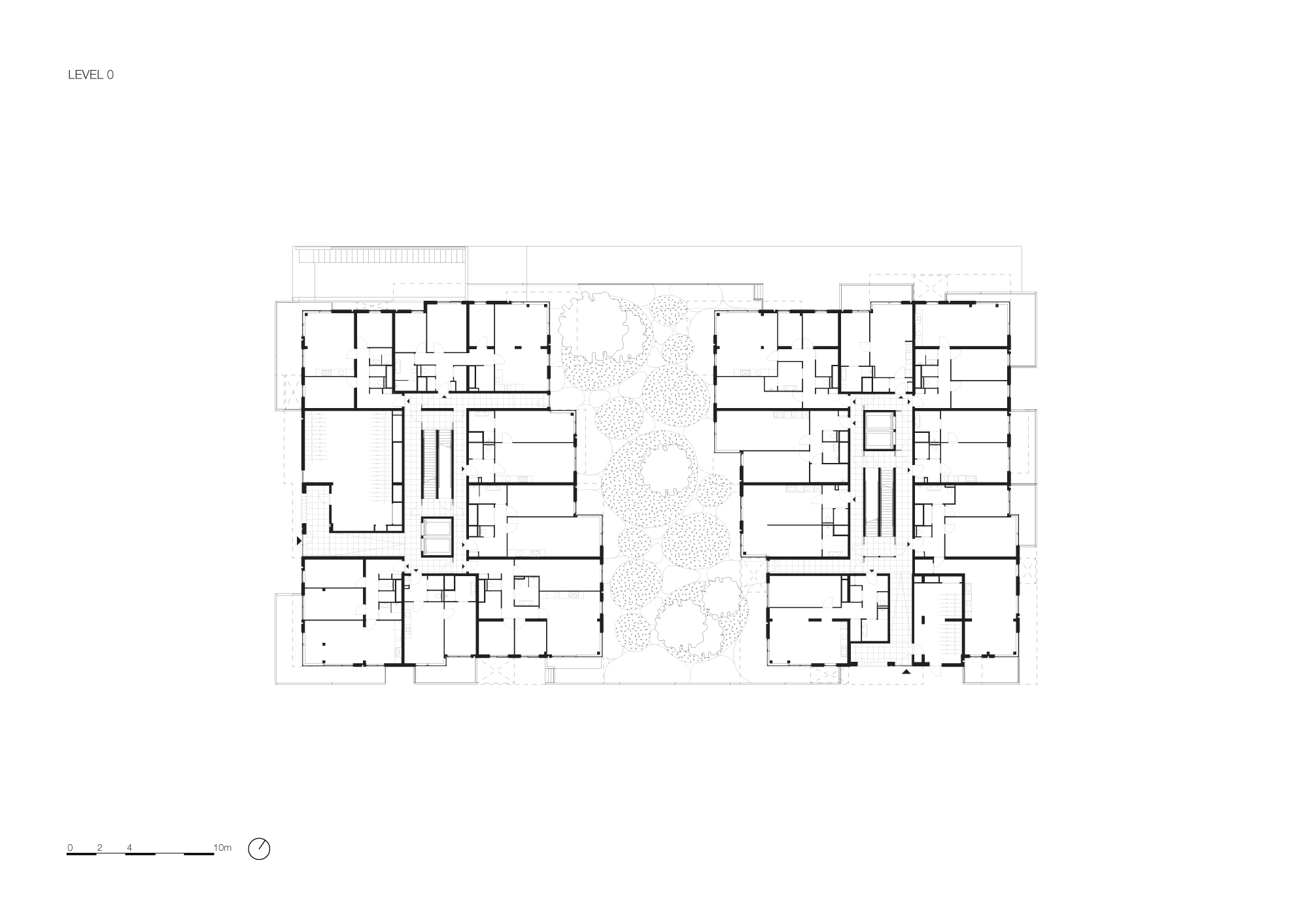
The development of Aan het IJ north of Amsterdam’s city centre embodies the balance between individuality and community. Situated within Geurst & Schulze’s 2003 master plan, The Stack celebrates urban living in the new neighbourhood. The design aims to minimize repetition within the project. Two key elements were explored to produce this diversity: different outside spaces, and a variety of apartment layouts. It results in 120 distinctive, spacious apartments housed in two interconnected villas that share a deck and a garden.

For this specific location, the urban plan prescribed two smaller separated buildings with a communal garden in between. The eastern building, with seven floors, has its entrance along the Spadinalaan, and the western building has eight floors along the Sausolitolaan, giving both villas a clear address. The natural stone-clad entrances lead to the central core with clearly visible stairs. On the ground floor, the entrance also gives access to the communal garden situated in between more private terraces.

Although different, both blocks share a coherent visual identity. Light grey concrete is the unifying element for the façade panels, balcony slabs and balustrades. Using the same colour palette for the metal railings at the openings contributes to the continuity and sophistication of the complex.

Video is loading ...

Info

Location
Amsterdam, NL
Date
2017–2024
Size
13,000 sqm
Client
Amvest
Team
Aldo Trim, Allard Assies, Andreas Alevras, Beatrice Bagnara, Claudia Vermeulen, Cristina Gonzalo Cuairán, Di Fang, Dikkie Scipio, Katarzyna Seweryn, Kees Kaan, Koen Bosman, Laura Ospina, Michael Geensen, Narcisa Ionita, Sjoerd Boomars, Thomas Hayat, Timo Cardol, Vincent Panhuysen
Photography
Sebastian van Damme
Landscape designer
Sant en Co
Urban designer
Geurst en Schulze
Building physics, fire safety and acoustics engineer
DGMR
Building costs advisor
Total Cost
General contractor
Kondor Wessels
Construction advisor
Diocon
Mechanical engineer
P.C. van der Horst
Electrical engineer
Blom elektrotechniek
Technical installations advisor
Mabutec