Skip to content

SPOT

Location
Amsterdam, NL
Typology
Residential
Date
2018–
Size
45,000 sqm

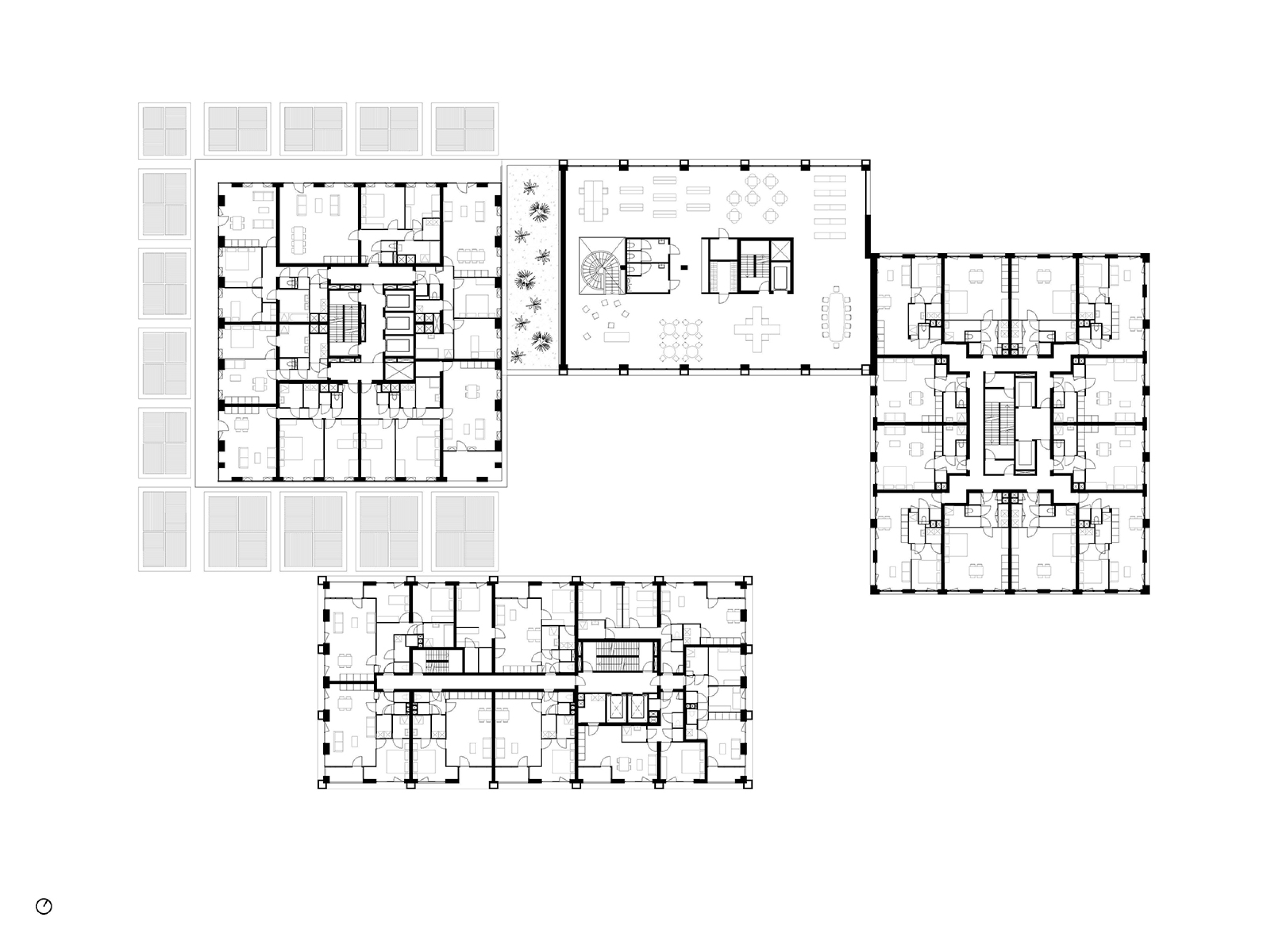
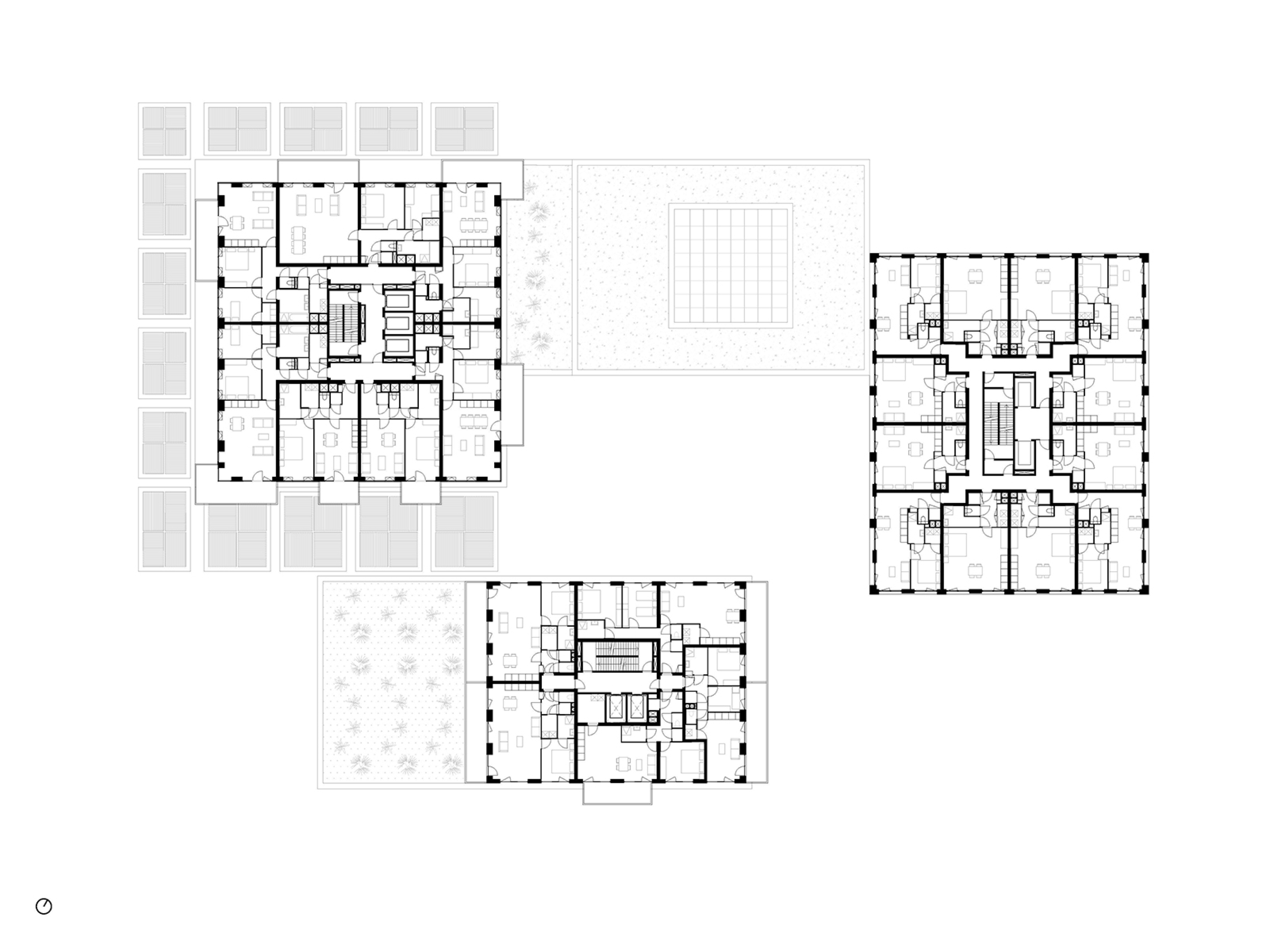
The SPOT project redevelops Hogehilweg in Amsterdam-Zuidoost. The design transforms the area, previously occupied by office blocks from the 80s, into a cosmopolitan part of the city. The redesign establishes different atmospheres simultaneously, creating both an intimate inner-city environment and an expanding metropolis, the village and the city in one.

The vision, with an underlying strategy of density, is to create a space with urban dynamics, bringing comfort and achieving an alluring stratification. With a strong emphasis on residential atmosphere aside offices and commercial spaces, the programme enables considerable density, resulting in a green inner-city environment. By varying towers and lower building blocks, SPOT introduces a layer between the human scale, the buildings, and the wider environment.

Info

Location
Amsterdam, NL
Date
2018–
Size
45,000 sqm
Client
COD, Duqer
Team
Aldo Trim, Beatrice Bagnara, Carlos Jacquet, Dikkie Scipio, Edoardo Mancini, Elmira Jafari, Hana Mohar, Jennifer Nam, Katarzyna Ephraim, Kees Kaan, Lianne Klitsie, Narcisa Ionita, Paolo Faleschini, Santiago Brignardelli, Vincent Panhuysen, Yiannis Tsoskounoglou
Photography
Visualization by: PF Visual; KAAN Architecten