Skip to content

Public Works Department

Location
Amsterdam, NL
Typology
Commercial
Date
1990–1992
Size
640 sqm

This project was originally designed by Claus en Kaan Architecten.


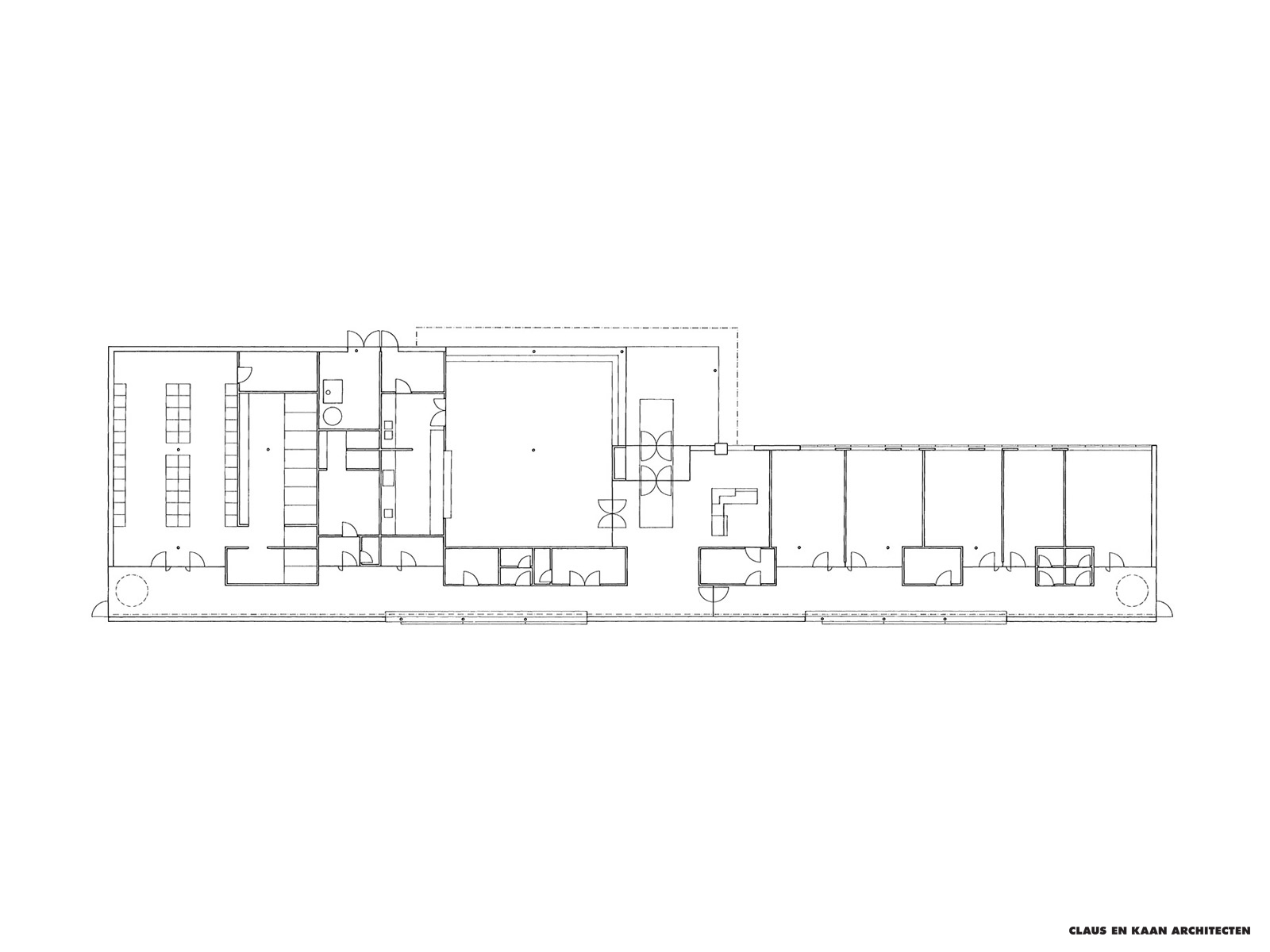
The Buitenveldert district Public Works Department is located on the southern side of Amsterdam, built in the early 1960s as part of the A.U.P. by Van Eesteren. This building fits into the rectangular grid of freestanding structures. It forms a screen marking the boundary between the linear parkway and the forecourt while achieving a clear internal cohesion. The architecture combines the functionality of a warehouse with the opulence of a bungalow. Its appearance seems to contradict its function.

The structure is organised horizontally. A long corridor extends over the 56 meters of the rear of the building, providing access to work areas, dressing rooms, and showers, as well as functioning as a filter between the depot and the street. Large floor-to-ceiling glass partitions create a connection between the inside and the outside. The building was demolished in 2006 and replaced by a larger one to meet the facility’s needs.

Info

Location
Amsterdam, NL
Date
1990–1992
Size
640 sqm
Client
Stadsdeel Buitenveldert
Team
Dagmar Driebeek, Felix Claus, Kees Kaan, Walter van Dijk
Photography
Michel Claus, Ger van der Vlugt