Skip to content

Netherlands Forensic Institute

Location
The Hague, NL
Typology
Civic
Date
1999–2004
Size
28,530 sqm

The Netherlands Forensic Insititute’s eye-catching location, just outside of The Hague, was strategically chosen to convey the institute’s importance as the nation’s only high-security bulwark of this kind. The building rises over four levels, with the medical and biological laboratories on the first floor, while the physical and chemical examinations take place on the second and third floors.

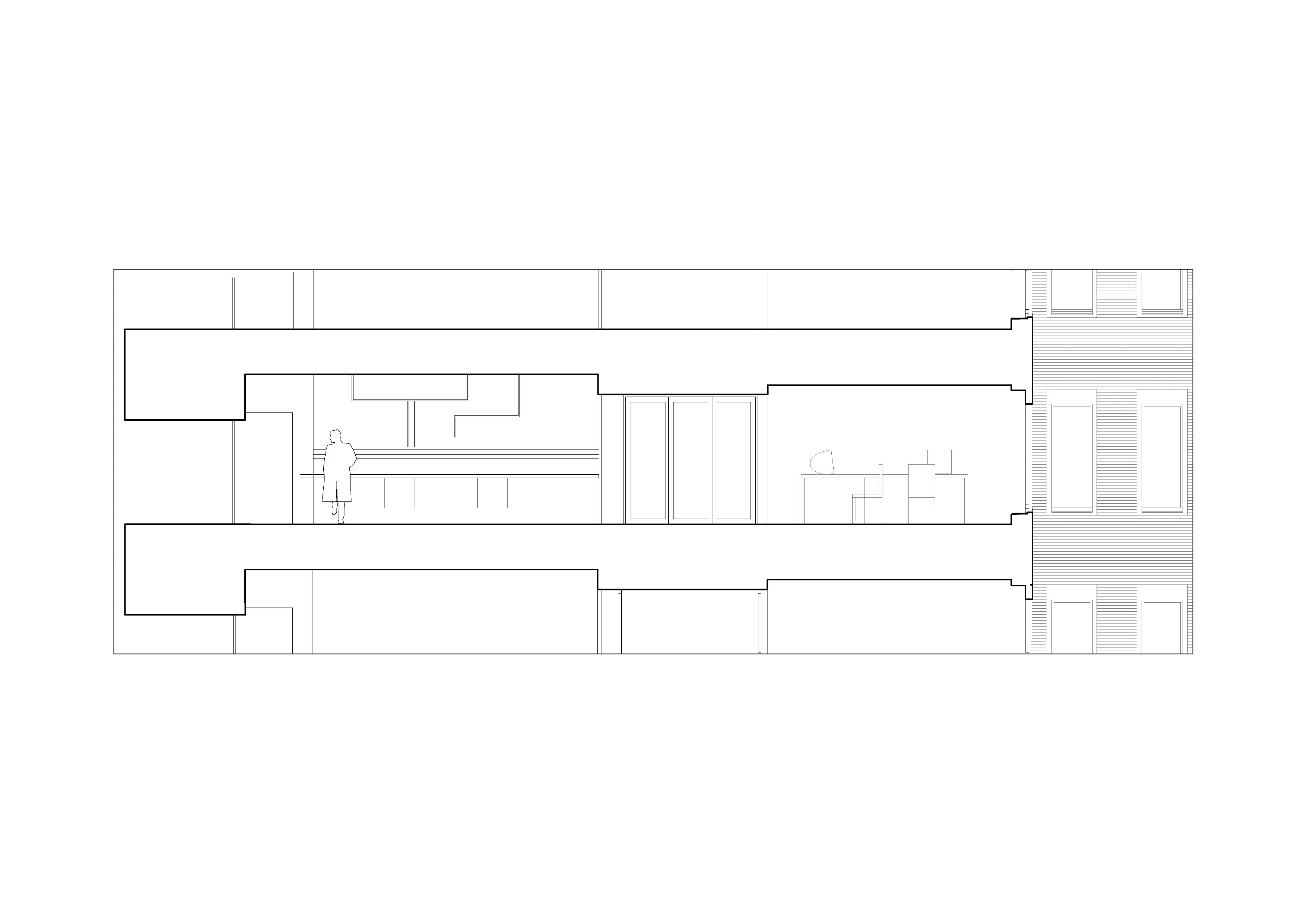
At the core of the institute is a grand hall flanked by three patios on both sides. The auditorium, library and conference centre are stacked at the base of this 'spine' near the entrance. The offices and laboratories are accessed by long corridors that wrap around the building. The exterior perimeter of the building is fitted with individual laboratories whose sizes and positions can be adapted by relocating walls and built in cupboards, to allow for changing circumstances.

Users moving from the core to the perimeter can experience the mass of the building dematerializing from the inside out, as brick and concrete walls give way to clear glass panes. The steel cantilevered bands that float over the glazed volumes serve to shield from the sun and admit different intensities of daylight. On each side of the building, the cantilevers have different depths suited to their orientation.

Info

Location
The Hague, NL
Date
1999–2004
Size
28,530 sqm
Client
Rijksgebouwendienst DGEO
Team
Allard Assies, Artsje Hijlkema, Björn Scharwei, Carl de Leeuw, Dikkie Scipio, Eric van Noord, Gabriella Fiorentini, Hannes Ochmann, Heidi Serbruyns, Henri van Bennekom, Kartsen Schellmat, Kees Kaan, Kim Sneyders, Martin Zwinggi, Michael Geensen, Pasquale Talerico, Thierry Voellinger, Valéry Didelon, Vincent Panhuysen
Photography
Christian Richters, Luuk Kramer
Contractor
J.P. van Eesteren
Construction advisor
PRC-Bouwcentrum
Structural engineer
ABT
Building physics engineer
DGMR
Acoustics advisor
DGMR
MEP engineer
Raadgevend Technisch Buro Van Heugten