Skip to content

Amsterdam Courthouse

Location
Amsterdam, NL
Typology
Civic
Date
2014–2020
Size
60,200 sqm

The Amsterdam Courthouse was built to replace the outdated judicial complex in the growing Zuidas district in south Amsterdam. The Courthouse design adheres to the principle that the judicial process is a public matter. Exuding authority yet approachability, the building is a stately yet inviting institution for public use. With 50 courtrooms and a surface of almost 50,000 square metres, the building is the biggest courthouse in the Netherlands.

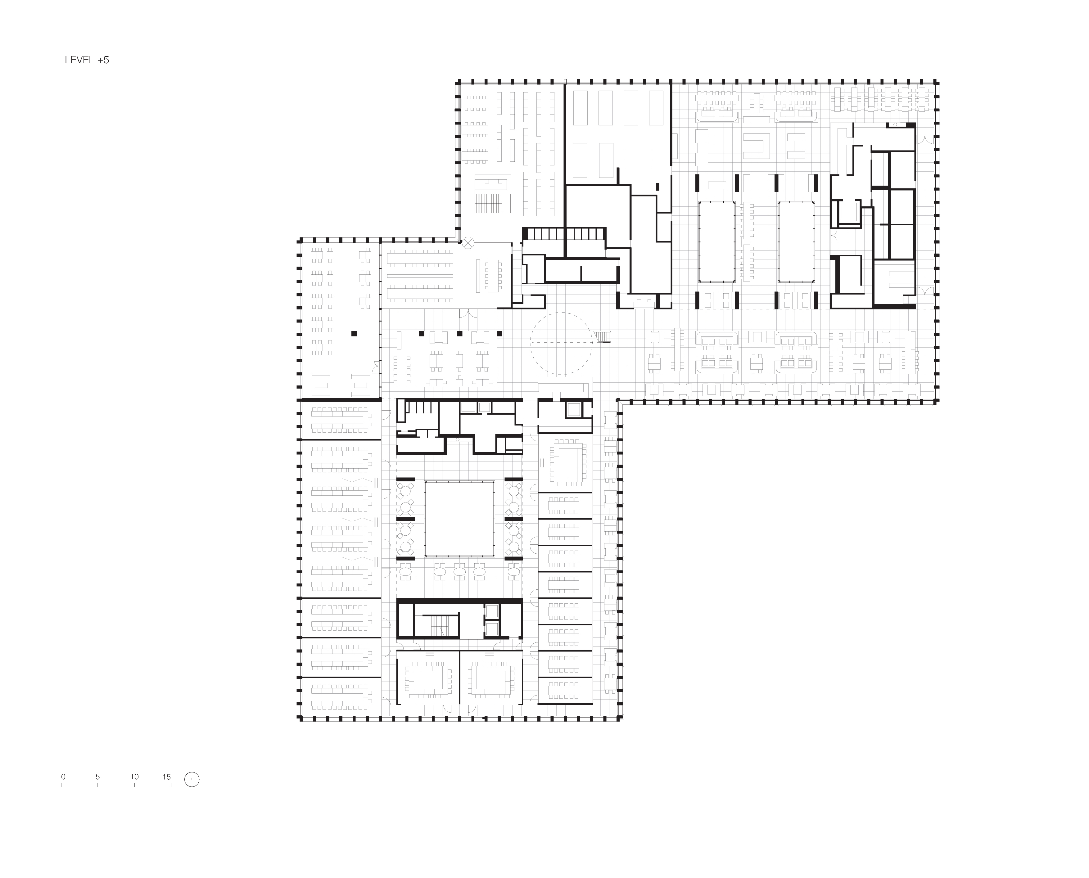
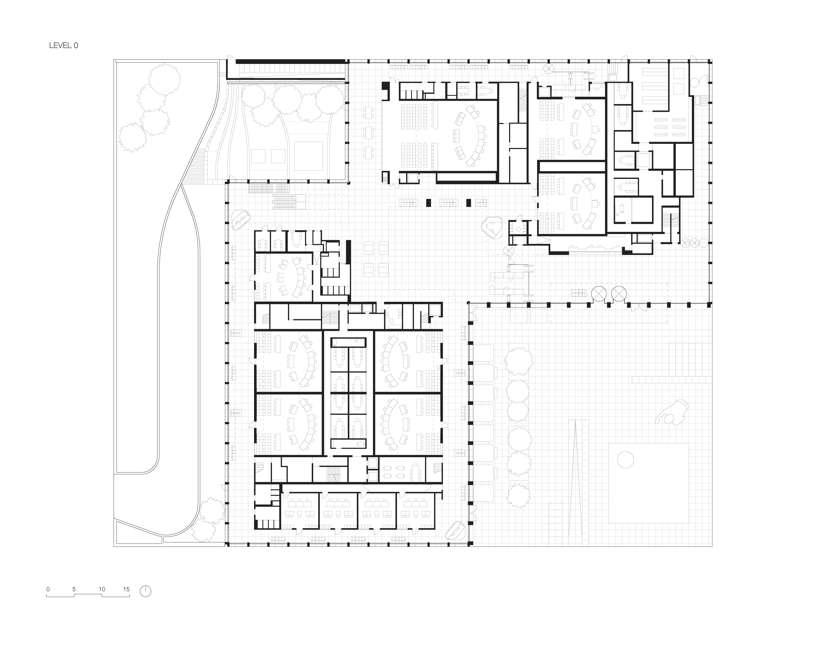
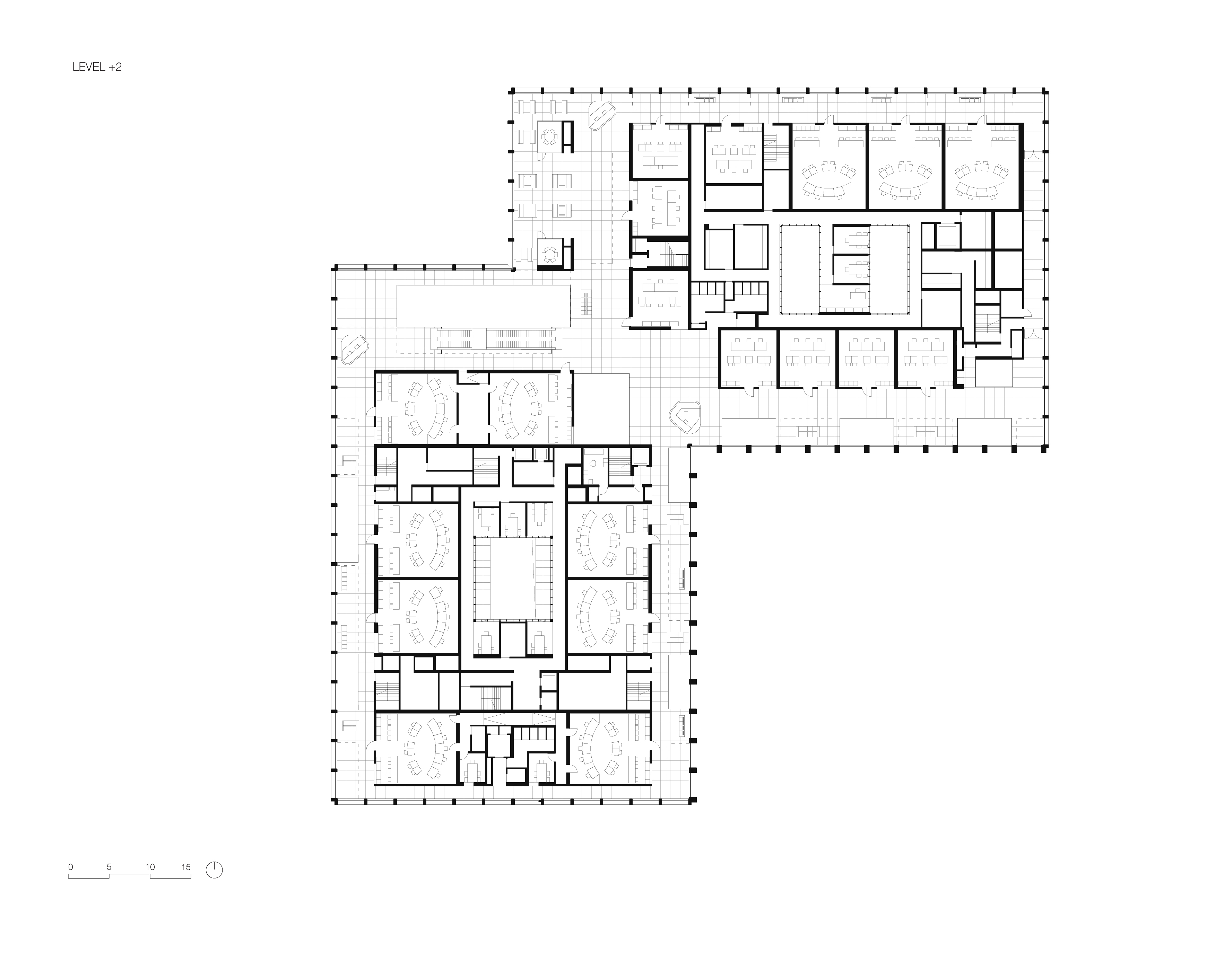
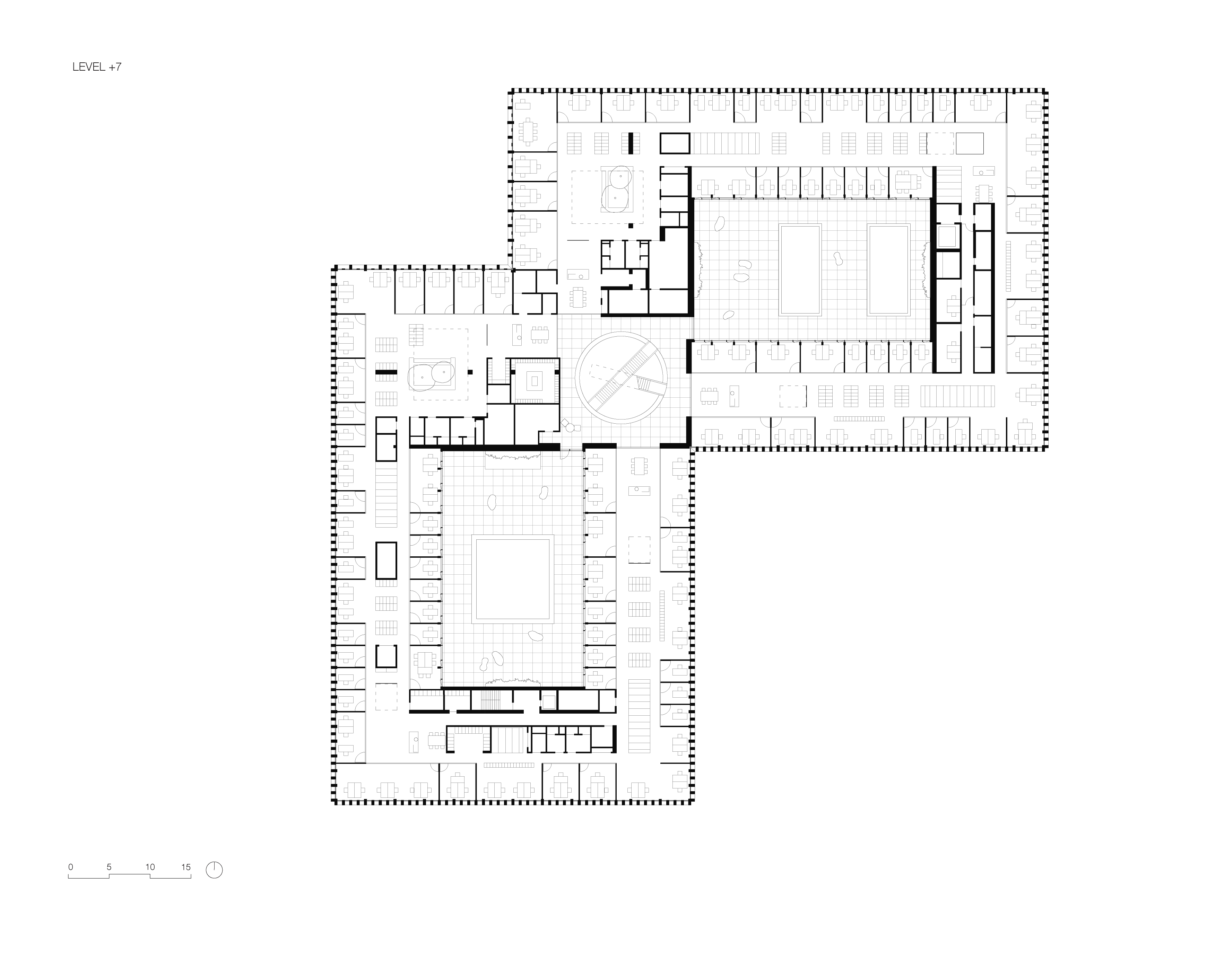
The Courthouse is horizontally divided into three sections to facilitate the separation of its functions and efficient circulation of users such as employees, judges, and visitors. The defendants' detention cells are located under the building with separate pick-up and drop-off ramps. The lower floors house the most open and public areas, such as the reception area and cafeteria, and are characterized by large double-height windows that offer an unobstructed view inside from the public square. The uppermost floors are connected through a grand circular staircase, giving way to offices and judges' chambers set around green indoor and outdoor courtyards. These spaces get progressively more tailored to an individual scale as the nature of work becomes more confidential and private. The relationship with the city is constant as large windows offer multiple views towards the surroundings, and the patios are flooded with greenery, giving light to the buildings interior core.

Info

Location
Amsterdam, NL
Date
2014–2020
Size
60,200 sqm
Client
Rijksvastgoedbedrijf
Team
Ana Rivero Esteban, Antony Laurijsen, Beatrice Bagnara, Cecilia Dobos, Claudio Zampaglione, Dennis Bruijn, Dikkie Scipio, Jana Culek, Jasmijn Kok, Johandry Martina, Julian O’Neale, Kees Kaan, Kevin Park, Koen Bosman, Laura Ospina, Lianne Klitsie, Lisa Goes, Luuk Dietz, Marco Lanna, Marija Mateljan, Marlon Jonkers, Marten Dashorst, Marten Dashorst, Martijn Schuil (EGM), Martina Margini, Martine Huijsmans, Michael Baas, Michael Geensen, Moritz Kuhl, Narine Gyulkhasyan, Paolo Faleschini, Raluca Firicel, Robin Cals, Sebastiaan Buitenhuis, Sebastian van Damme, Siebe Besseling (ABT), Sjoerd Boomars, Teun van Dooren (ABT), Thomas Hayat, Vincent Panhuysen, Yinghao Lin
Photography
Fernando Guerra FG+SG, Sebastian van Damme
General contractor
Consortium NACH
Consortium NACH
Macquarie Capital - investor
ABT - engineering
DVP - management
KAAN Architecten - architect and interior architect
Heijmans - general contractor
Facilicom - maintenance and operation