Skip to content

Royal Museum of Fine Arts

Location
Antwerp, BE
Typology
Culture
Date
2003–2022
Size
30,000 sqm

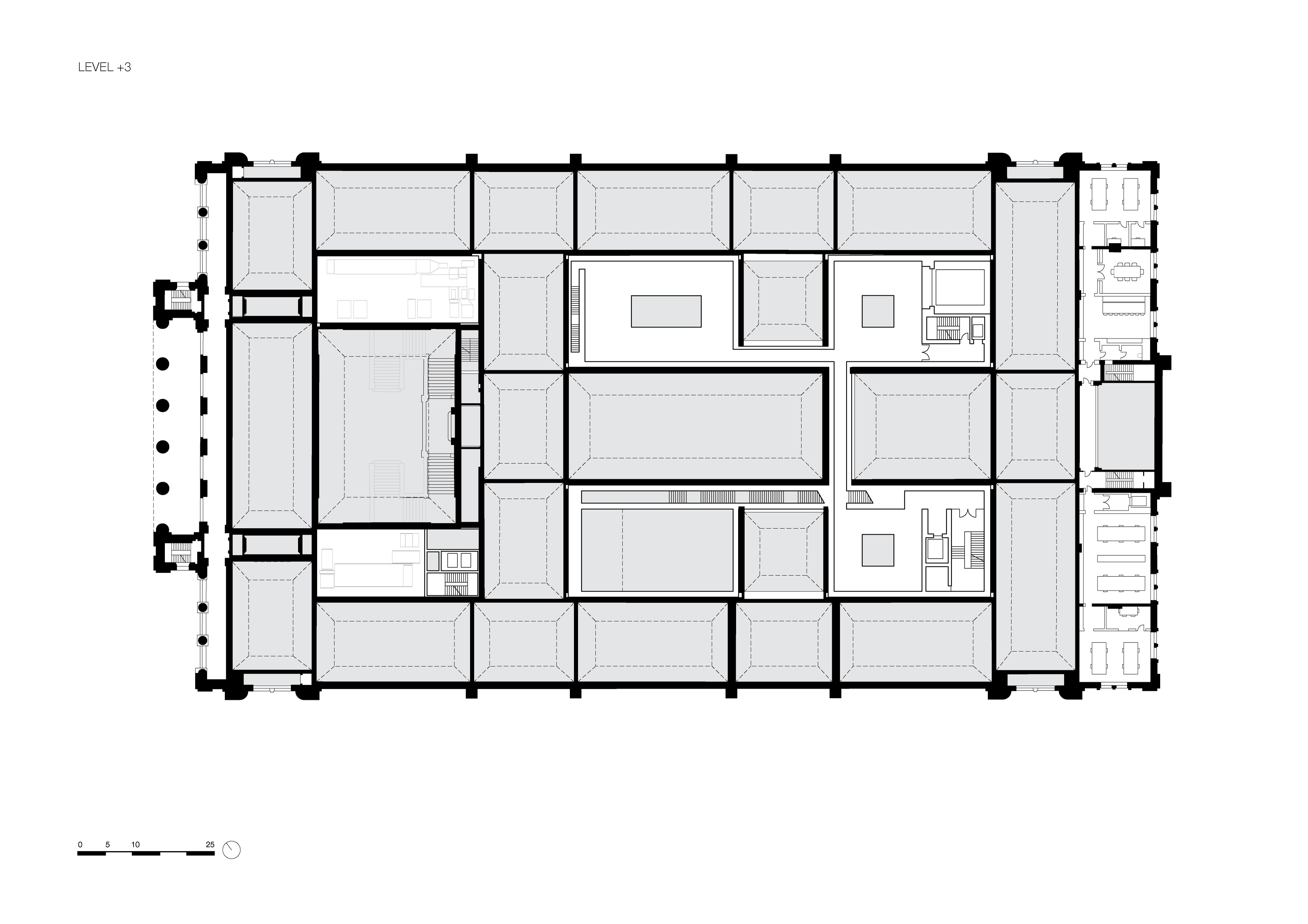
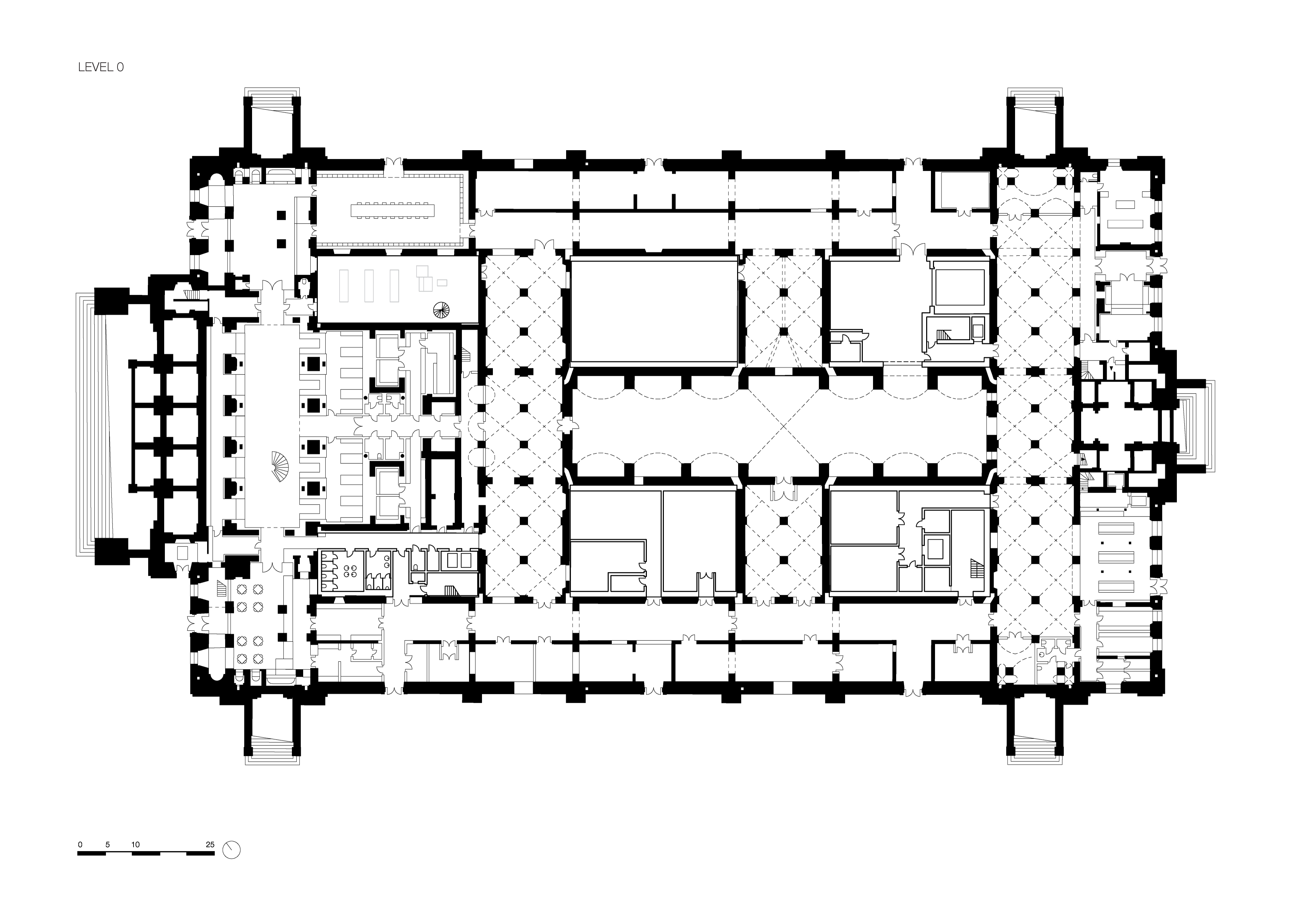
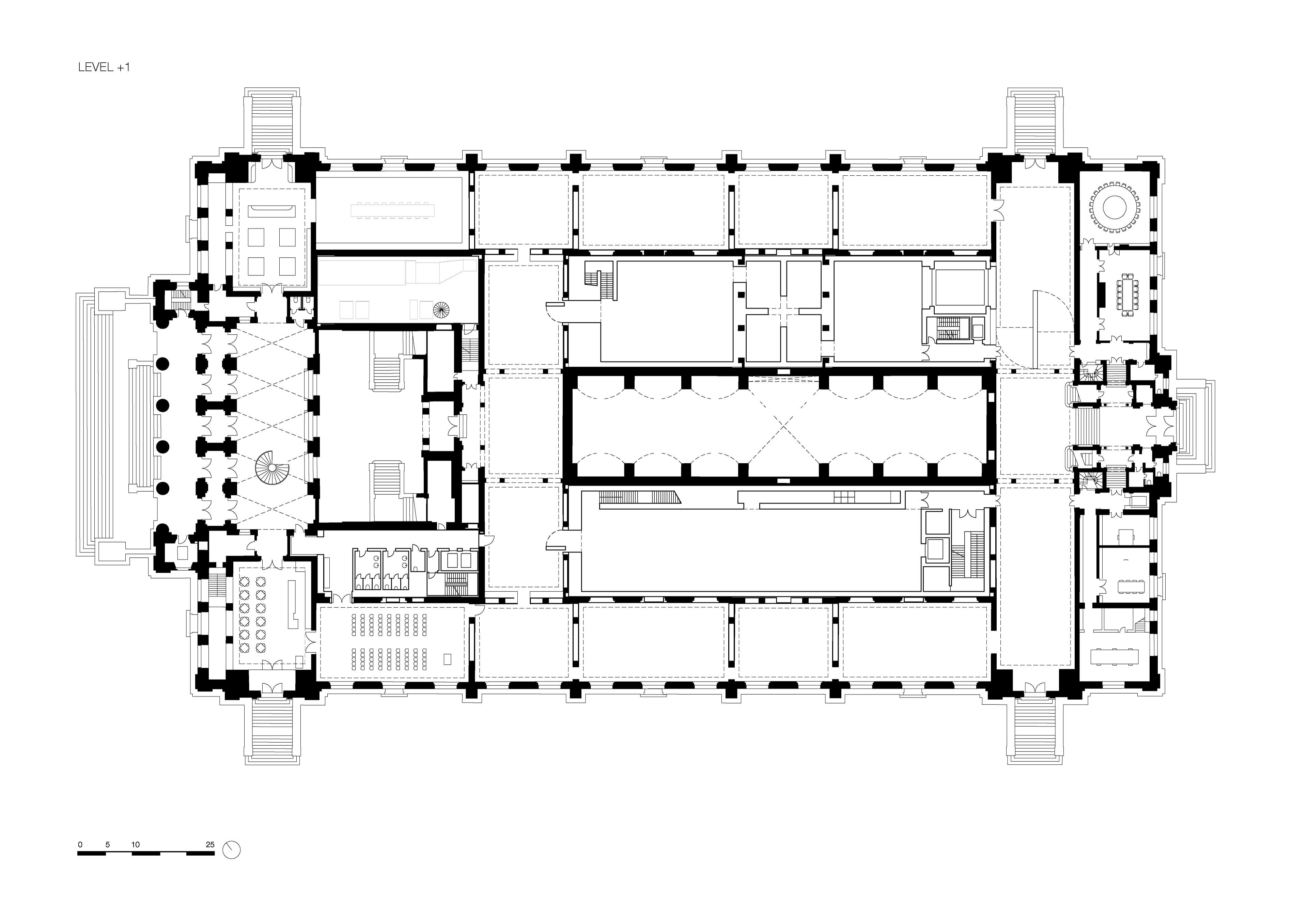
Antwerp's Royal Museum of Fine Arts (KMSKA) was originally conceived in the 19th century as a 'daylight museum' by architects Winders and Van Dyck, but the building underwent many fundamental changes in layout over the following century, which modified the original route of circulation and the building's connection to the city. This intervention aims to reverse previous spatial changes by combining a thorough renovation of the historical museum with a contemporary extension woven into the existing structure.

A complete overhaul of the 19th-century building restores the intrinsic spatial qualities by reinstating original colours, materials, and routing within the historic halls. Hidden in the heart of the old building, a new museum rises as an autonomous entity, anchored within the four original courtyards. With bright white exhibition halls, secret rooms, long staircases, and far-reaching sightlines, the new museum charts a route full of surprising vertical experiences. Daylight comes through triangular north-facing roof elements on the top hall and floods through four large lightwells.

The architectural concept executed in the museum produces an innovative and adventurous journey. Visitors can discover the two contrasting worlds that nonetheless stand in dialogue with each other, creating an experience that is unpredictable but always in balance.

Info

Location
Antwerp, BE
Date
2003–2022
Size
30,000 sqm
Client
Primary client: Departement Cultuur, Jeugd en Media (Vlaamse Overheid) Mandated client: Het Facilitair Bedrijf (Vlaamse Overheid)
Team
Aksel Çoruh, Alice Colombo, Davis de Cos Roman, Dennis Bruijn, Dikkie Scipio, Eva French i Gilabert, Giacomo Rizzi, Giuseppe Mazzaglia, Ismael Planelles Naya, Kees Kaan, Kim Sneyders, Koen van Tienen, Laura Ospina, Maicol Cardelli, Marco Jongmans, Martin Zwinggi, Martina Margini, Maurizio Papa, Michael Geensen, Narine Gyulkhasyan, Niels Vernooij, Paolo Faleschini, Ralph van Schipper, Raluca Firicel, Sebastian van Damme, Valentina Bencic, Vincent Panhuysen, Walter Hoogerwerf, Walter Hoogerwerf
Photography
Sebastian van Damme, Stijn Bollaert
General contractor
THV Artes Roegiers – Artes Woudenberg
Construction advisor, structural and MEP engineer
Royal Haskoning
Building physics and fire safety engineer
Royal Haskoning, Bureau Bouwtechniek, KAAN Architecten
Lighting and acoustics advisor
Royal Haskoning, KAAN Architecten
Restoration advisor
Architectenbureau Fritz, KAAN Architecten