Skip to content

National Bank of Belgium

Location
Brussels, BE
Typology
Commercial
Date
2021–
Size
80,000 sqm

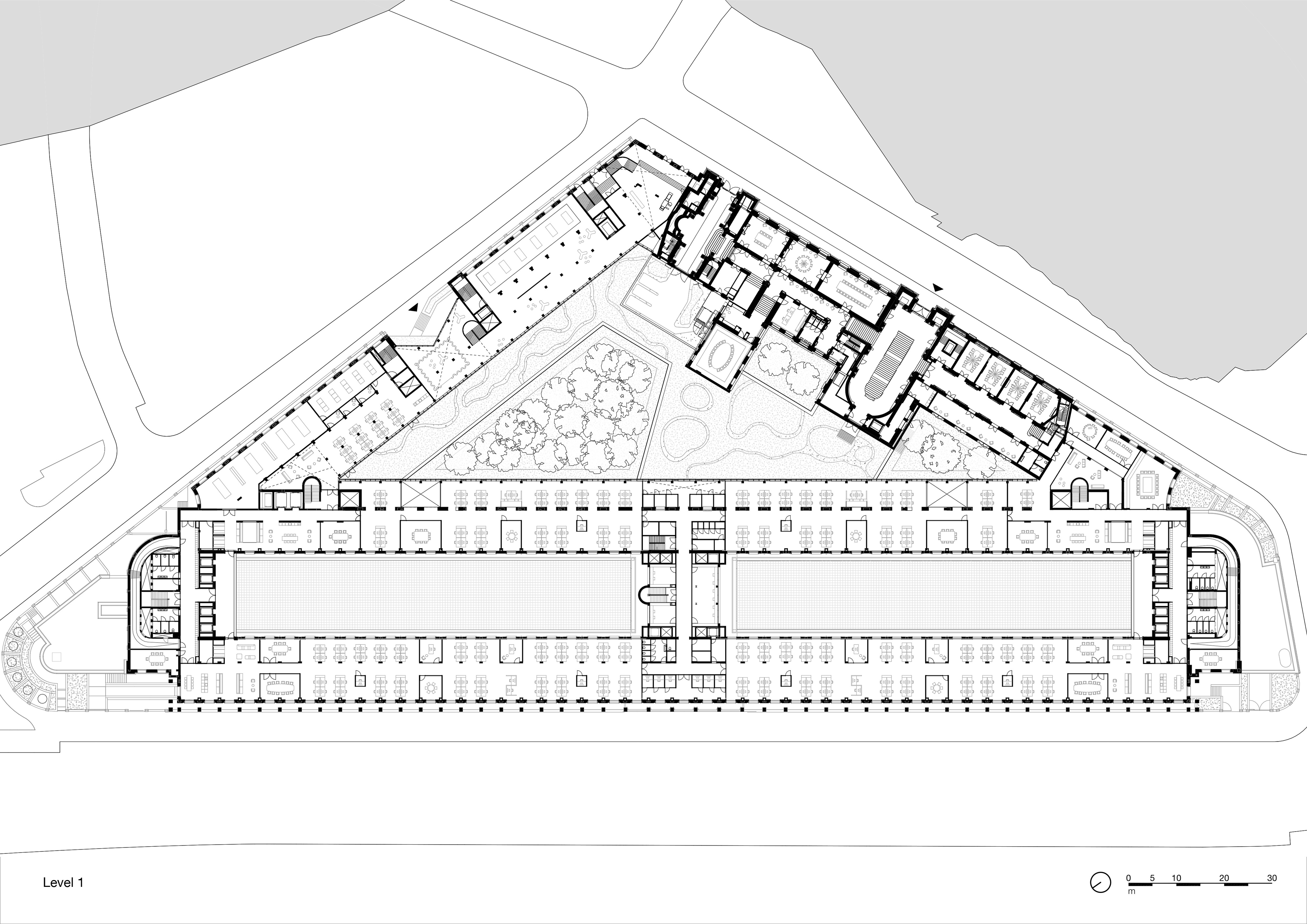
The National Bank of Belgium is set to renovate its headquarters by 2030. This project creates a modern, sustainable workspace, consolidating operations into a single building, NBB1, in Brussels. The renovation addresses the current inefficiencies and high energy use of the dispersed buildings, reducing the occupied surface area from 217,000 sqm to about 80,000 sqm and aligning with the Bank’s sustainability and social responsibility goals.

NBB1, located on Boulevard de Berlaimont, consists of historic structures built between the 1860s and the 1960s. The renovation retains these valuable heritage components while transforming the space into a future-oriented environment. Key features include removing restrictive elements to create a spacious courtyard garden adjacent to the former counter hall and enhancing natural light and green views. Strategic voids improve vertical connectivity, and some ground-floor areas have double-height ceilings to increase spaciousness. The expansion of the office wings ensure all workstations face the garden, with a new transparent facade blending interior and exterior spaces.

Direct access to the social plinth, new passageways, and improved visibility of lifts and stairwells ensures efficient circulation. The design focuses on easy navigation and orientation for both occupants and visitors.

The renovation transforms NBB1 into a smart building, incorporating advanced lighting, ventilation, and heating systems to achieve significant energy savings. This ambitious plan reflects the NBB’s commitment to sustainability, modernity, and the preservation of historical values, resulting in a headquarters that combines openness, beauty, and timeless grandeur.

Info

Location
Brussels, BE
Date
2021–
Size
80,000 sqm
Client
National Bank of Belgium, Brussels
Team
Aida Jalili, Christine Lie, Dikkie Scipio, Frane Stancic, Hana Mohar, Jasper van Boxtel, Javier Cuartero, Julia Linde - van den Heuvel, Kees Kaan, Laura Ospina, Michael Geensen, Michalina Wawro, Raluca Firicel, Renata Gilio, Rens Hoofs, Renée Meijer, Samara Zukoski, Sebastian van Damme, Serenay Gulhan, Timo Cardol, Vincent Panhuysen, Walter Hoogerwerf, Yinghao Lin
Photography
Visualizations by Filippo Bolognese