Skip to content

Crematorium Heimolen

Location
Sint-Niklaas, BE
Typology
Civic
Date
2005–2008
Size
3,190 sqm

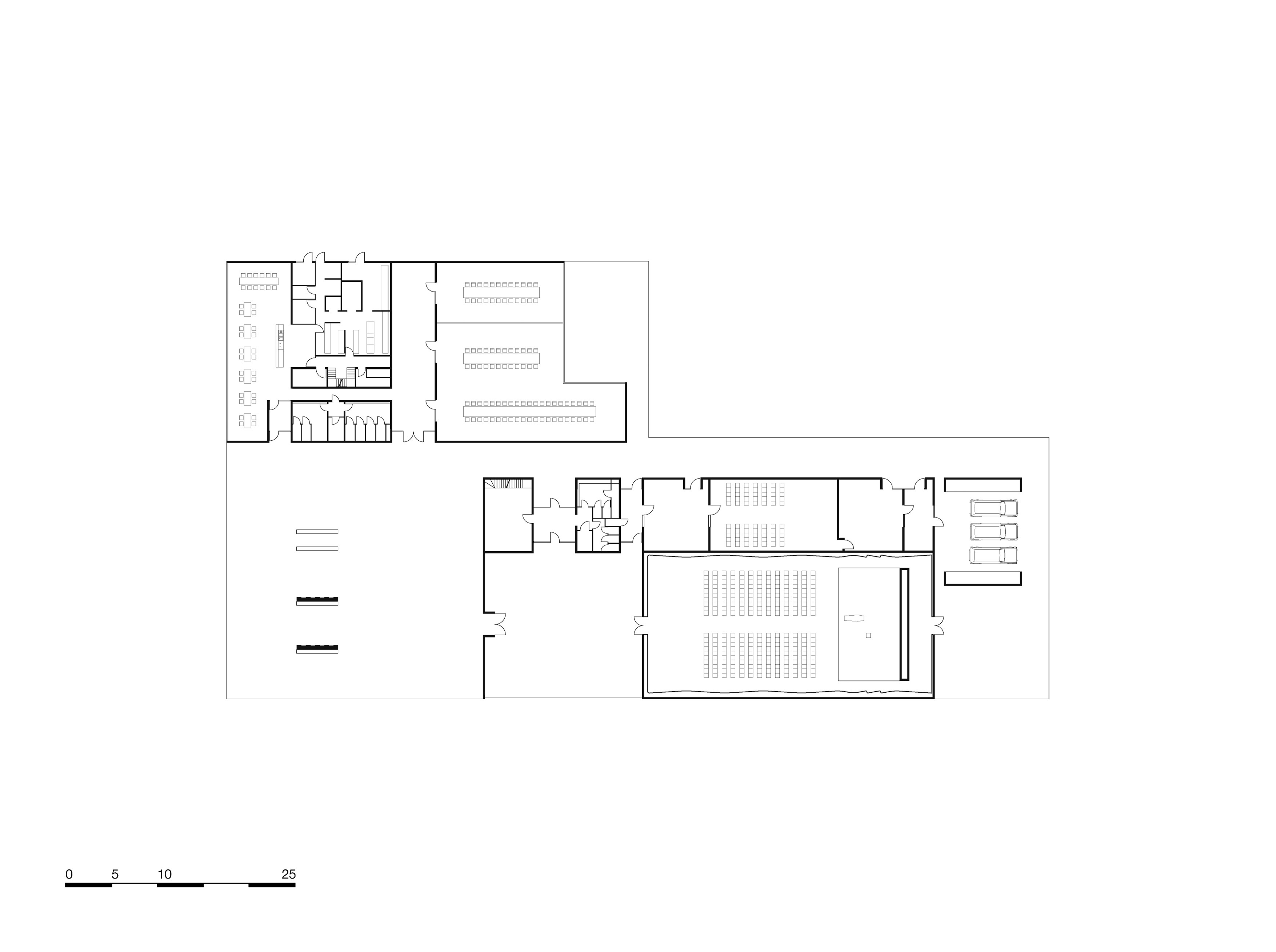
The Heimolen Crematorium, located on the outskirts of Sint-Niklaas, was designed as two buildings: a ceremonial one with assembly halls and supporting facilities near the entrance to the complex; and a technical one with cremation chambers at the cemetery's northern edge. Each building has a distinctive look and character deriving from its function. Though they are the same size, their different programmes make for polar opposite design concepts: one is dominated by a large roof that encloses a series of public amenities, while the other is a volume on a clean platform.

The covered forecourt provides space for gathering outdoors. Once inside, the cemetery and surrounding nature are framed by large windows that pull the landscape into a serene reception room. With its undulating walls, stone, wood and soft floodlight from the perforated domes of the roof, the main auditorium is a space dedicated to contemplation. The meticulous integration of spatial gestures and a subtle variety of materials result in a space with presence, a space that is carefully balanced.

The technical aspect is housed in a volume on a clean platform, its façade composed of cream-coloured, prefabricated concrete elements imprinted with a subtle pattern. On the inside, the openings on the façade cast light onto the three freestanding cremation chambers where the bereaved can have their final farewell.

The oven building

Info

Location
Sint-Niklaas, BE
Date
2005–2008
Size
3,190 sqm
Client
IGS Westlede
Team
David Hess, Dikkie Scipio, Hagar Zur, Hannes Ochmann, Kees Kaan, Luuk Stoltenborg, Vincent Panhuysen, Yaron Tam
Photography
Christian Richters, Kim Zwarts, Sebastian van Damme, Stijn Bollaert
General contractor
Roegiers
Construction advisor
Pieters Bouwtechniek
Building physics engineer
Bureau Bouwtechniek Antwerp
MEP engineer
Bureau Bouwtechniek Antwerp
Acoustics advisor
Prinssen en Bus Raadgevende Ingenieurs