Skip to content

Central Post

Location
Rotterdam, NL
Typology
Commercial
Date
2006–2009
Size
52,400 sqm

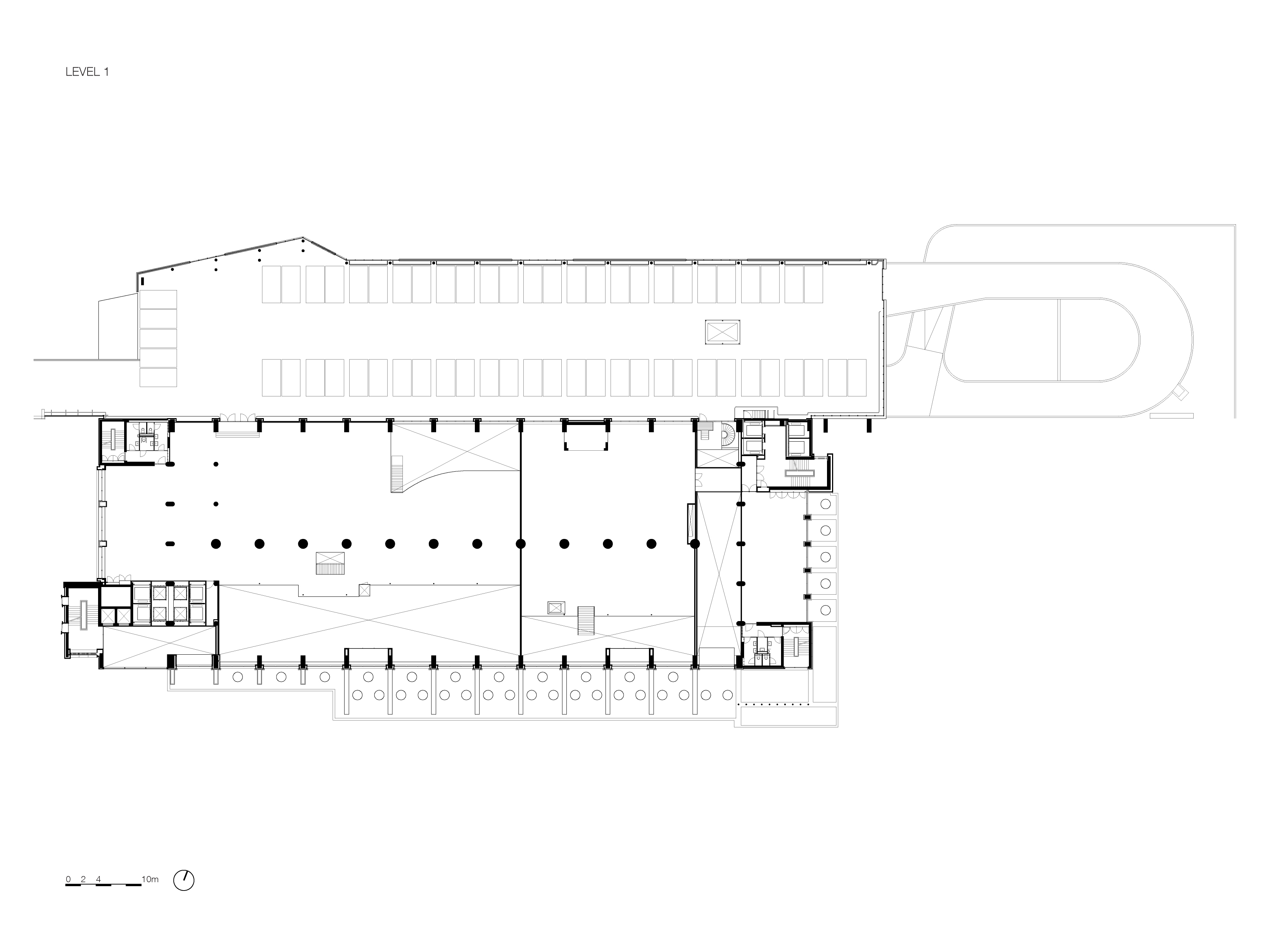
Central Post, the old and robust structure next to Central Station in Rotterdam, has been redeveloped into a contemporary and multifunctional office building to house the new creative industry. The project restored the exterior and added hanging floors to the interior, since the structure was built to carry more load than it ever held. The resulting building has a 90% increase in floor area and a Class A Energy Label. It is one of the five most sustainable buildings in the Netherlands.

As part of the redevelopment, the existing cores on both sides of the building were updated and the long office floors were divided by a wall to reduce the size of rentable units while creating fireproof compartments. A corporate penthouse is housed on the top floor, with a terrace overlooking the city, while the ground-floor spaces add vibrancy to an updated and contemporary Delftseplein.

Info

Location
Rotterdam, NL
Date
2006–2009
Size
52,400 sqm
Client
Central Post (LSI Project Investment + Fortress)
Team
Aksel Coruh, Allard Assies, Carl Greveling, Chris Luth, Dikkie Scipio, Hagar Zur, Jan Teunis ten Kate, Kees Kaan, Leo Harders, Luuk Stoltenborg, Mart-Jan den Hoed, Monika Konrad, Vincent Panhuysen, Yaron Tam
Photography
Christian Richters, Luuk Kramer
Contractor
Dura Vermeer Bouw
Construction advisor
Van Rossum Raadgevende Ingenieurs
Building physics engineer
Peutz
Fire safety engineer
Peutz
MEP engineer
J. van Toorenburg