Skip to content

Institut des Sciences Moléculaires d’Orsay

Location
Orsay, FR
Typology
Science and Health
Date
2012–2018
Size
10,000 sqm

Institut des Sciences Moléculaires d’Orsay is a part of Paris-Saclay, an urban campus dedicated to higher education, research and innovation spread over nearly 600 hectares in a natural woodland setting. Nestled in the forest, the compact rectangular volume of ISMO, with its openness towards the environment, gives the users an impression of walking through the landscape.

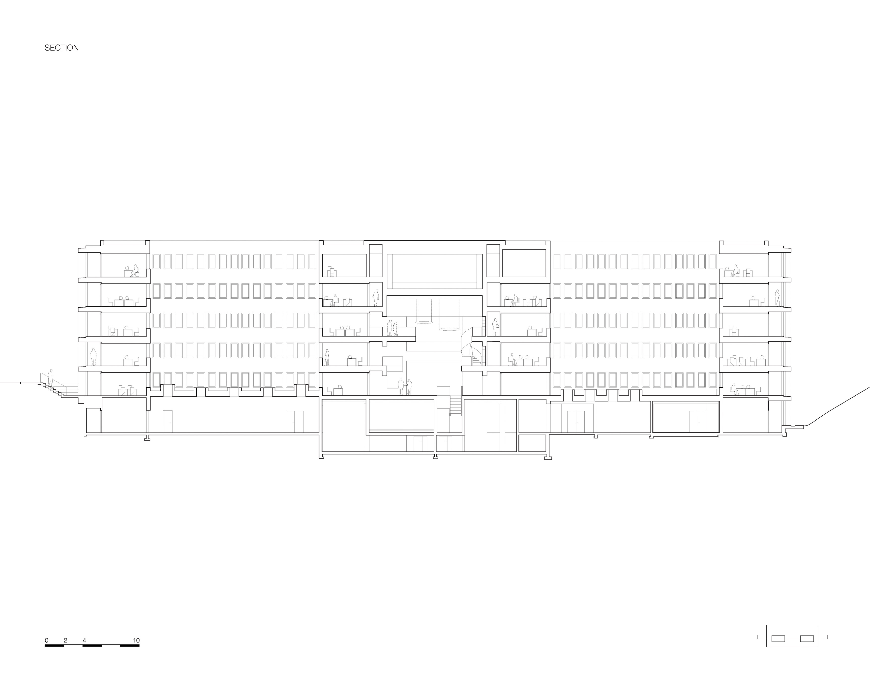
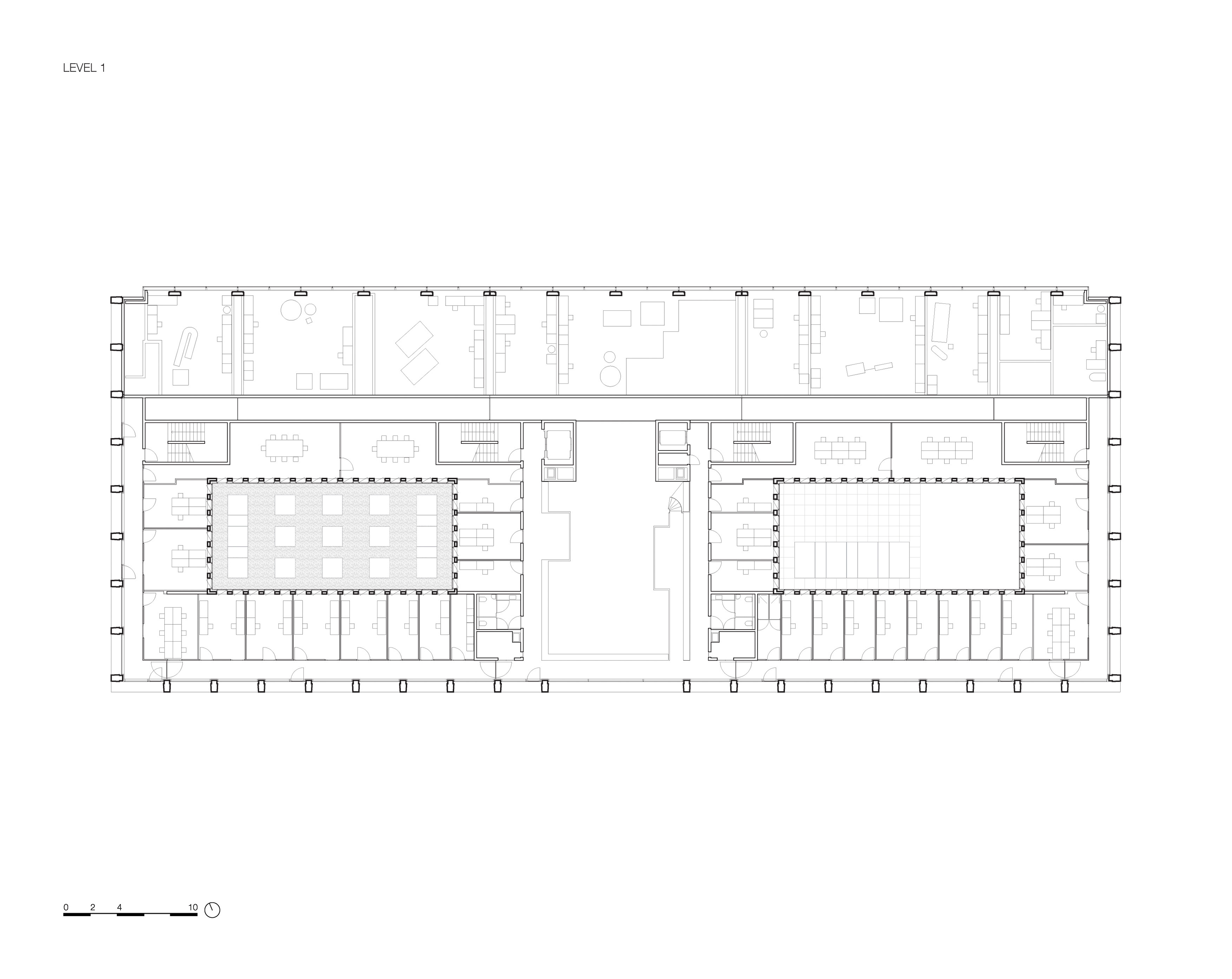
The ISMO building is a union of two halves, housing theoretical and practical research, architecturally expressed through the difference in façades and light. One area contains advanced scientific instruments and high-tech laboratories, while the other comprises quiet meeting and office spaces.

The laboratories are situated along the north-facing side of the building behind a sleek curtain wall. In contrast, the floorplan has been inverted on the south side, where corridors run immediately behind the facades, and the working spaces are situated around two spacious courtyards that provide natural light. The interior corridors that line three of the façades create a sense of openness and underline the vital link between the architecture and its surroundings. The atrium, hovering above a large, suspended auditorium, creates a grand spatial effect in a cohesive combination with spaciousness and sightlines. Beside the entrance, a library wall stretches over two levels, connected by an enclosed spiral steel staircase, while rectangular balconies project into the space as comfortable settings for conversation and the exchange of ideas.

Info

Location
Orsay, FR
Date
2012–2018
Size
10,000 sqm
Client
Université Paris Sud
Team
Aksel Coruh, Ana Rivero Esteban, Christophe Banderier, Dikkie Scipio, Ismael Planelles Naya, Jan Teunis ten Kate, Joeri Spijkers, Kees Kaan, Koen van Tienen, Marc Coma, Marco Lanna, Paolo Faleschini, Pauline Trochu, Renata Gilio, Sebastian van Damme, Vincent Panhuysen, Walter Hoogerwerf
Photography
Fernando Guerra | FG+SG, Sebastian van Damme
General contractor
SN Bloch
Local architect
FRES architects
Structural engineer
EVP Ingénierie
Acoustics advisor
Peutz & Associes
Financial advisor
Bureau Michel Forgue
Roads and utilities advisor
Servicad Ouest IDF
MEP and sustainability engineer
INEX