Skip to content

Galeries Modernes

Location
Rotterdam, NL
Typology
Commercial
Date
2017–2022
Size
7,700 sqm

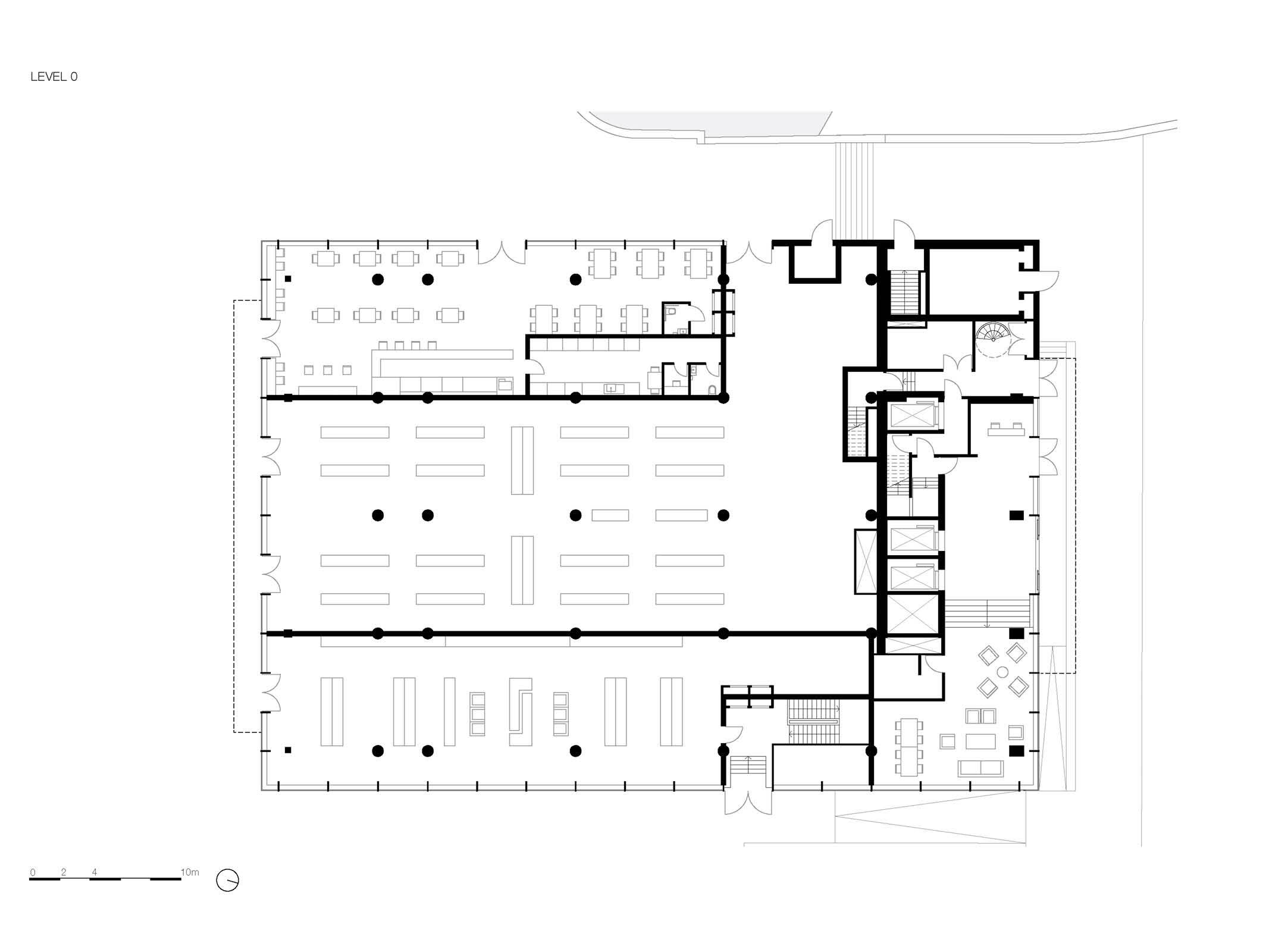
Originally built in 1957 by renowned architects Van den Broek en Bakema, Galeries Modernes was a prime example of the Reconstruction era architecture of Rotterdam. The renovation refers to and respects the basic architectonic principles of the original design; strong volumes with deep setbacks in a primarily horizontal composition and sharp canopies are original qualities which are reinterpreted and translated into a contemporary building.

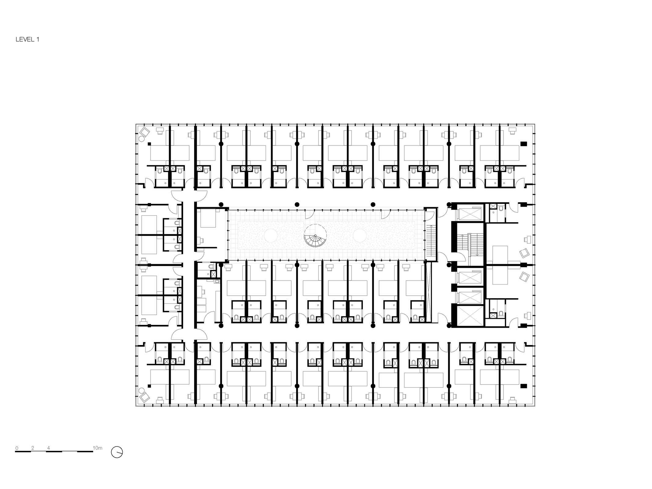
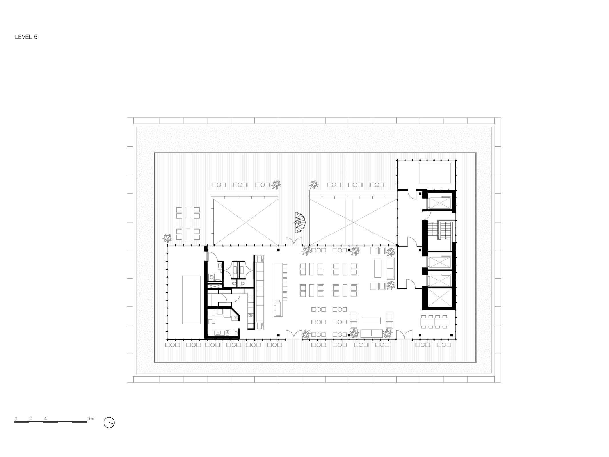
The existing concrete structure of the building is kept intact, with an added extra level on top. Retail is situated on the ground floor while the floors above house a hotel with 180 guest rooms . The façade design is equivalent on all sides of the building, with a transparent plinth of big glass panels resembling the rhythm of the original façade. Above the plinth, a glass box and natural stone volumes follow in a horizontal alignment. Few carefully chosen materials manifest in a natural yet elegant ensemble. Inside the building, a patio brings light and greenery into the hotel. Part of the green roof is dedicated to a terrace and pavilion, from which guests can enjoy amazing views over the city centre of Rotterdam.

Info

Location
Rotterdam, NL
Date
2017–2022
Size
7,700 sqm
Client
Tenstone Development
Team
Beatrice Bagnara, Carlos Jacquet, Claudia Vermeulen, Cristina Gonzalo Cuairan, Dikkie Scipio, Edoardo Mancini, Giulia Rapizza, Hana Mohar, Jorge Correia, Katarzyna Seweryn, Kees Kaan, Marlon Jonkers, Mieke Vink, Nicki van Loon, Rick Hospes, Robin Cals, Timo Cardol, Vincent Panhuysen, Yagiz Söylev
Photography
Sebastian van Damme
Developer
Boelens de Gruyter
General contractor
BOBgroep bouw & ontwikkeling
Construction manager
Drees & Sommer
Structural engineer
Pieters Bouwtechniek
Mechanical and plumbing engineer
J.I. Service
Electrical engineer
Vink Installatie Groep
Sustainability advisor
DGMR