Skip to content

De Bank

Location
Rotterdam, NL
Typology
Commercial
Date
2016
Size
1,400 sqm

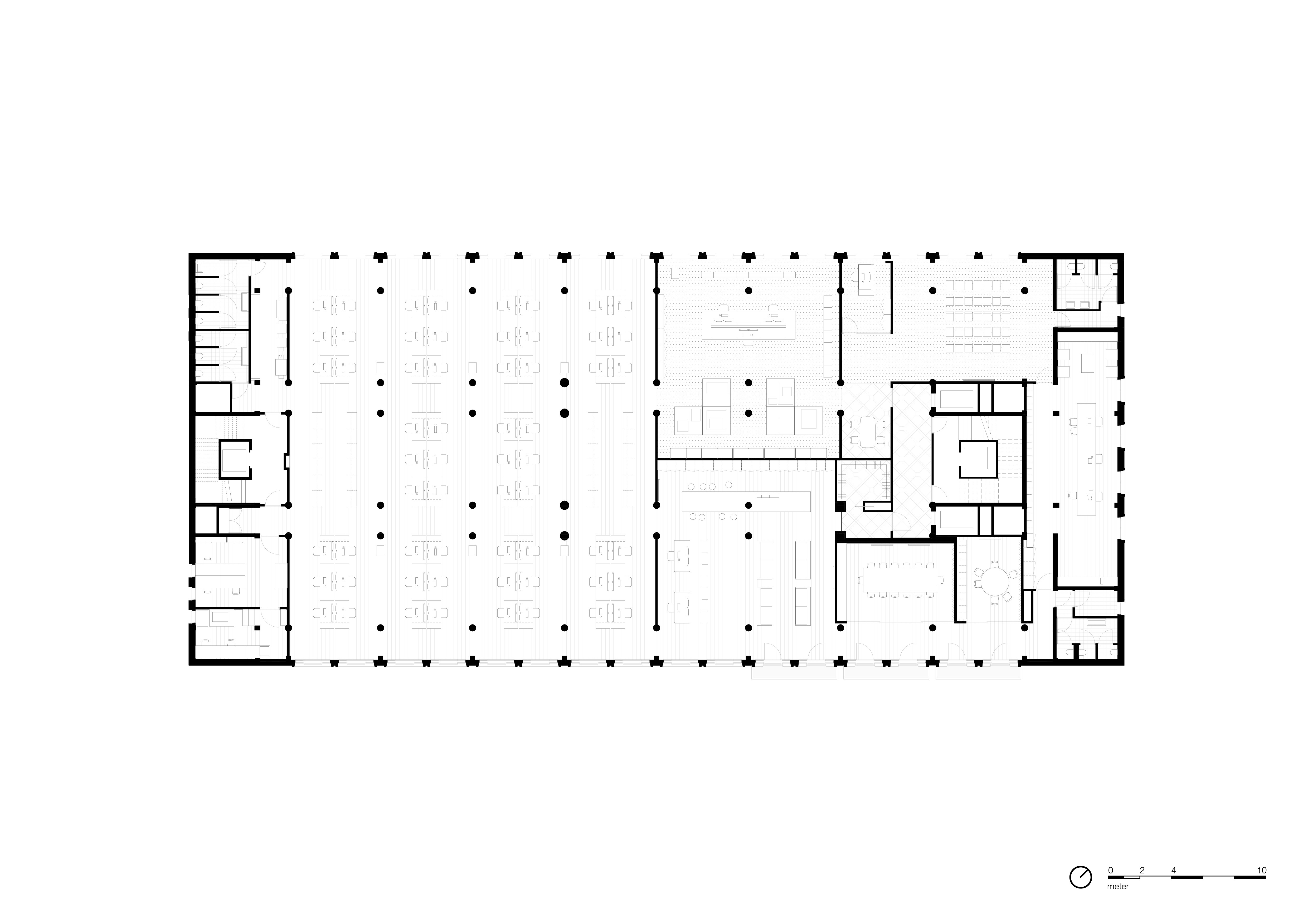
The office of KAAN Architecten is located in the heart of Rotterdam, on the Maas river, just a few steps from the iconic Erasmus Bridge. The firm transformed part of the former premises of De Nederlandsche Bank into their new open-plan headquarters, which encompasses more than 80 workspaces.

The space is on the piano nobile of a quintessential historical building originally designed by Prof. Henri Timo Zwiers in 1950-1955. The beating heart of the space is an extensive working area for architects. This space is flooded by daylight coming in from both sides and offers a unique view of the surrounding waterfront. The rectangular floor plan, with its clear proportions, is designed to effectively connect working, meeting, and leisure spaces through several long monumental corridors and passages, enhancing fluid interactions between employees, visitors, and partners.

Info

Location
Rotterdam, NL
Date
2016
Size
1,400 sqm
Team
Beatrice Bagnara, Dennis Bruijn, Dikkie Scipio, Giuseppe Mazzaglia, Kees Kaan, Luuk Dietz, Marten Dashorst, Timo Cardol, Vincent Panhuysen
Photography
Simone Bossi
Contractor
Pleijsier Bouw
Construction advisor
Pieters Bouwtechniek
Water + Electrical installations
Van Panhuis
Flooring
Finesse Parketvloeren
Wooden furniture
13 Speciaal