Skip to content

CUBE - Education and Self Study Centre

Location
Tilburg, NL
Typology
Education
Date
2016–2018
Size
11,000 sqm

The CUBE Education and Self-Study Center is located on the Tilburg University campus. This compact and ostensibly low structure blends into its surrounding green landscape and into the larger architectural ensemble of the campus.

Located in the northwest corner of the orthogonally laid out campus, the 11,000 square-meter CUBE serves all faculties. It is in constant use by over 2200 students and lecturers that cross its spaces every day. Paved pathways in the landscape guide users to the building’s entrances on the southern corners. The whole is a secluded space for studying that feels like an opening in the woods.

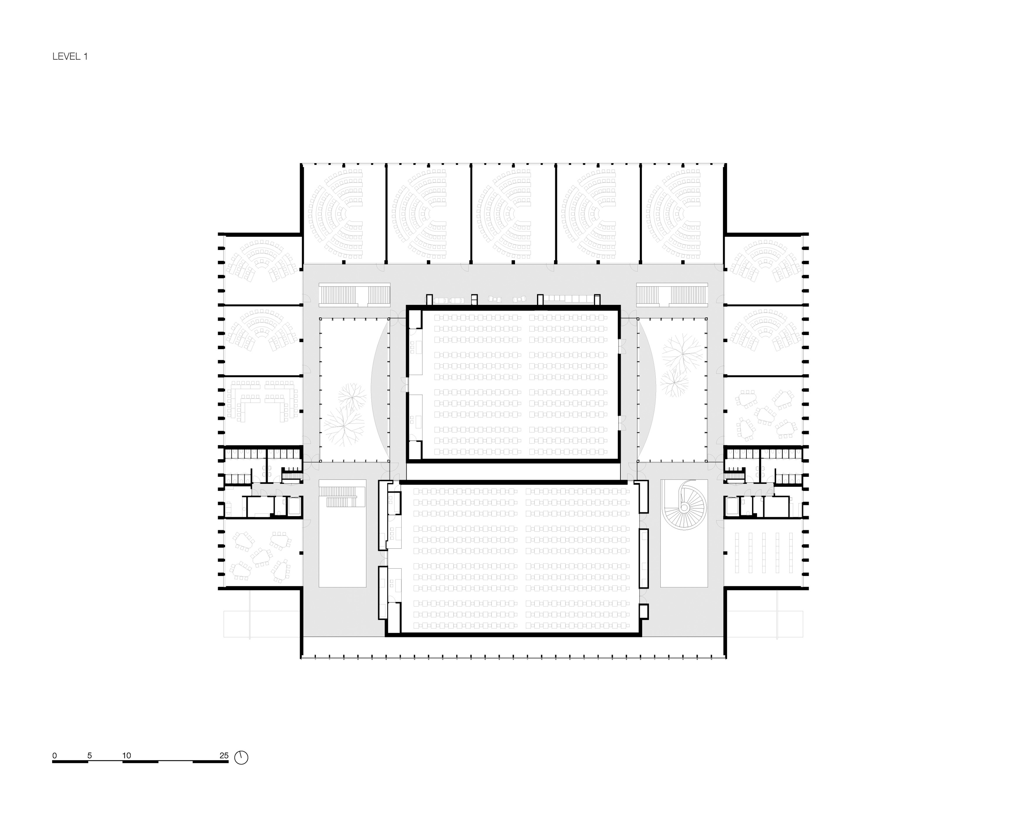
The heart of CUBE is a spacious indoor study plaza flanked by a transparent auditorium and two patios. High ceilings allow abundant daylight to reach deep into the welcoming public space on the ground floor. On both levels, fully-equipped lecture rooms run alongside the façades, highlighting the strong orthogonal orientation. This homogenous layout leaves no closed-off façades and exudes complete equality, making the transition to the green outdoor enclosure practically seamless.

More than any other building on campus, the new Education and Self-Study Center is a building for students. It is open and spacious, elegant and robust, and flexible for both current users and future generations.

Info

Location
Tilburg, NL
Date
2016–2018
Size
11,000 sqm
Client
Tilburg University
Team
Alejandro Gonzáles Pérez, Allard Assies, Dennis Bruijn, Dikkie Scipio, Kees Kaan, Kevin Park, Maria Stamati, Marlon Jonkers, Martina Margini, Michael Geensen, Noëmi Vos, Rense Kerkvliet, Roland Reemaa, Sebastian van Damme, Timo Cardol, Vincent Panhuysen, Yang Zhang, Yiannis Tsoskounoglou
Photography
Simone Bossi, Sebastian van Damme
Contractor
VORM Bouw
Project manager
VORM Ontwikkeling
Construction advisor
Pieters Bouwtechniek
MEP advisor
J. van Toorenburg Installatieadviseur
Water, plumbing, fire protection installations
A. de Jong Installatietechniek
Electrical installations
Steegman Elektrotechniek
Fire control, acoustics advisor
Buro Bouwfysica
Sustainability advisor
ABT
Quality manager
OPPS
Landscape architect
MTD Landschapsarchitecten