Skip to content

Chambre de Métiers et de l’Artisanat Hauts-De-France

Location
Lille, FR
Typology
Education
Date
2007–2019
Size
14,800 sqm

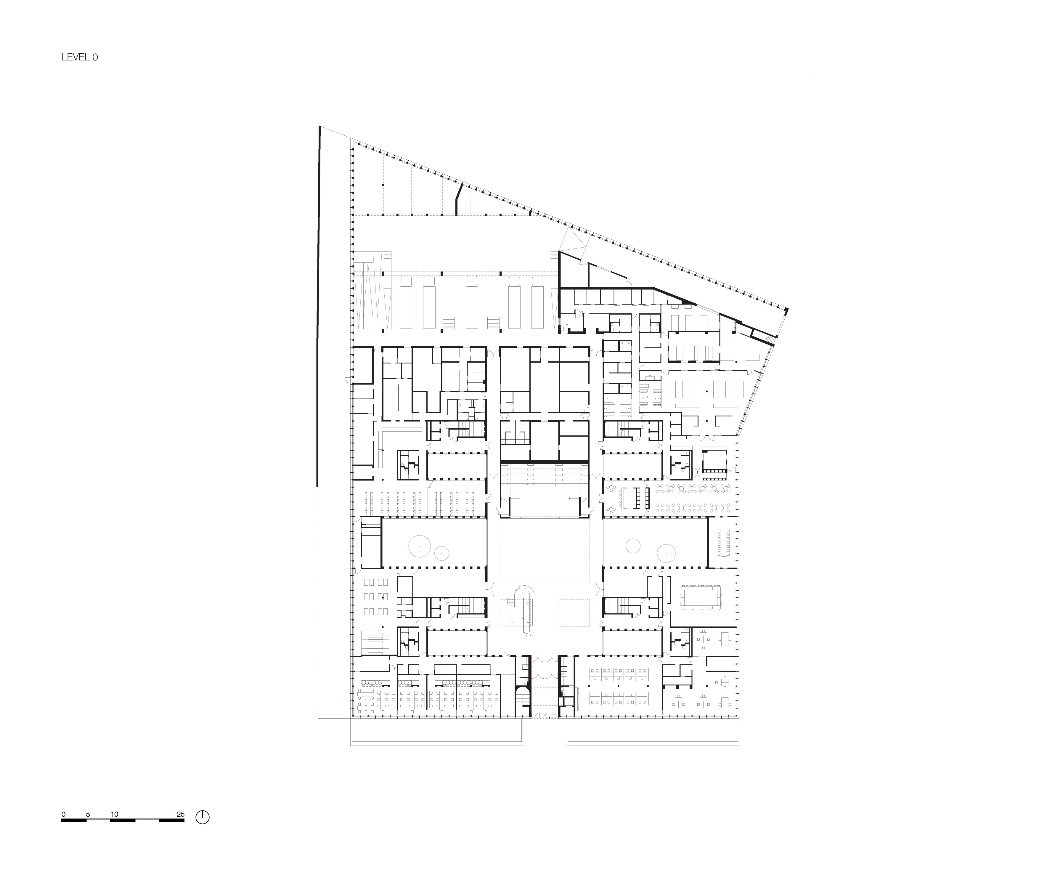
Chambre de Métiers et de l’Artisanat Hauts-De-France (CMA) is located in the Eurartisanat district of Lille, a somewhat ill-defined zone between the centre of Lille and its southern suburbs. As the essential part of the new urban plan for this district, the CMA building establishes the morphology of future buildings in the area. It offers a kind of ‘intensification of horizontality’, rising only three floors high from a square-shaped footprint. The building’s geometry and transparency embrace the surrounding nature.

The building houses offices for the local and regional Chamber of Trades and Crafts and the associated training school, which had previously been scattered over different locations in the old city centre. Two separate entrances enable the coexistence of various users on site and offers them two public squares on different levels. Both entrances are connected by a linear succession of public spaces: the southern square, the entrance hall, the auditorium, and a wide opening overlooking the north terrace.

CMA embodies an intense relationship with the landscape through the prominent use of quartzite stone and the shimmering glazed envelope. Through its materiality, the building aims to articulate, absorb and reflect the surrounding nature while, at the same time, constituting itself as an inhabited landscape.

Info

Location
Lille, FR
Date
2007–2019
Size
14,800 sqm
Client
Chambre de Métiers et de l'Artisanat Hauts-De-France Lille
Team
Ana Rivero Esteban, Anne Roullet, Christophe Banderier, Delphine Bresson, Dikkie Scipio, Fabien Pinault, Gustav Ducloz, Hannes Ochmann, Ismael Planelles, Jean Pierre Pranlas-Descours, Julie Heathcote-Smith, Kees Kaan, Louise de Chatellus, Marianne Seyhan, Marylene Gallon, Maud Minault, Michael Geensen, Paolo Faleschini, Raluca Firicel, Renata Gilio, Sebastian van Damme, Vincent Panhuysen
Photography
Fernando Guerra | FG+SG, Sebastian van Damme, Antoine Guilhem Ducléon
General contractor
Demathieu et Bard
Partner architect
PRANLAS-DESCOURS architect & associates
Structural engineer
EVP Ingénierie
Financial advisor
Martin & Guiheneuf
MEP and Sustainability engineer
Martin & Guiheneuf
Façade advisor
T/E/S/S atelier d'ingénierie
Landscape designer
TN+