Skip to content

Bottière Chénaie

Location
Nantes, FR
Typology
Residential
Date
2012–2019
Size
17,200 sqm

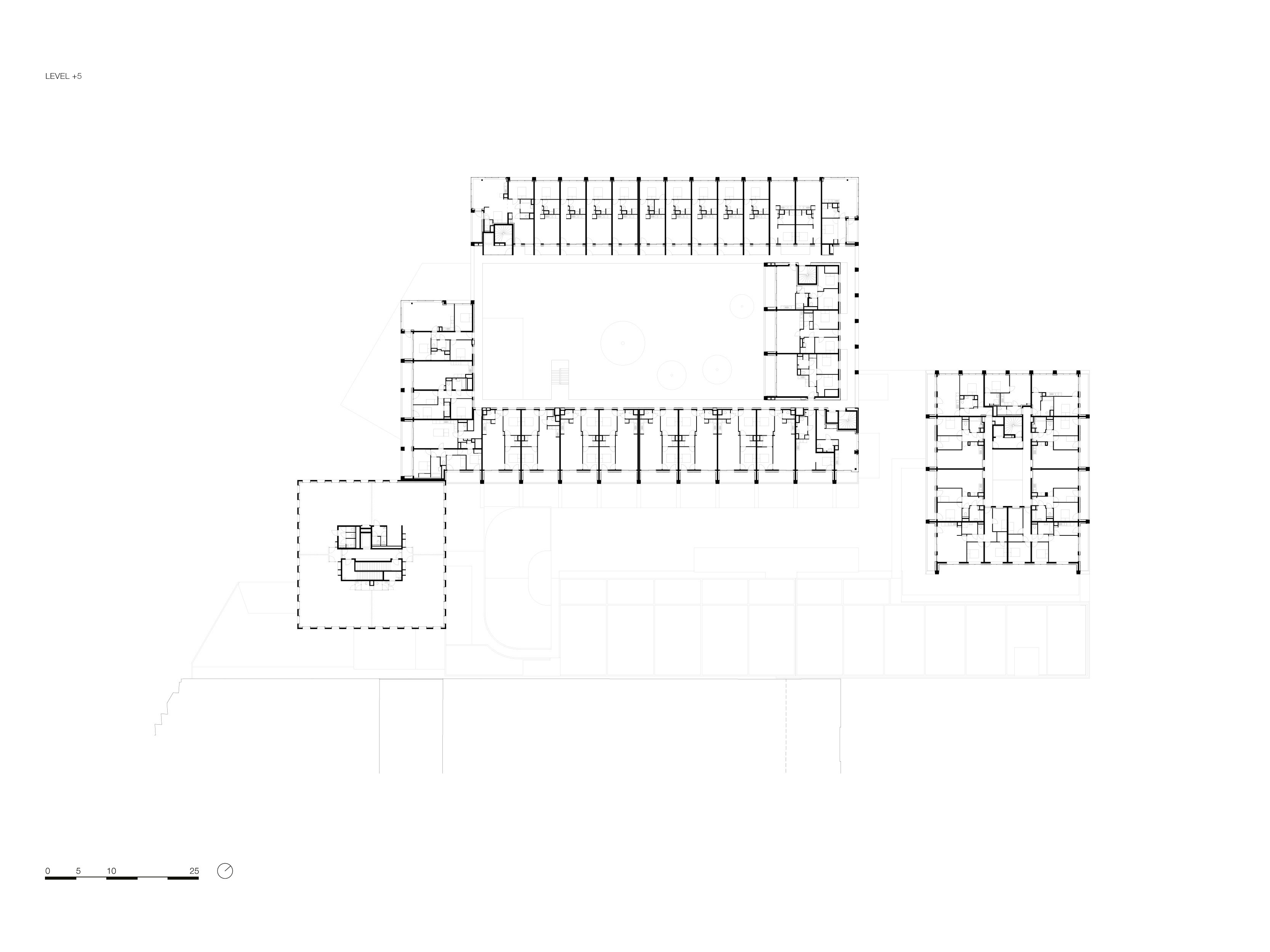
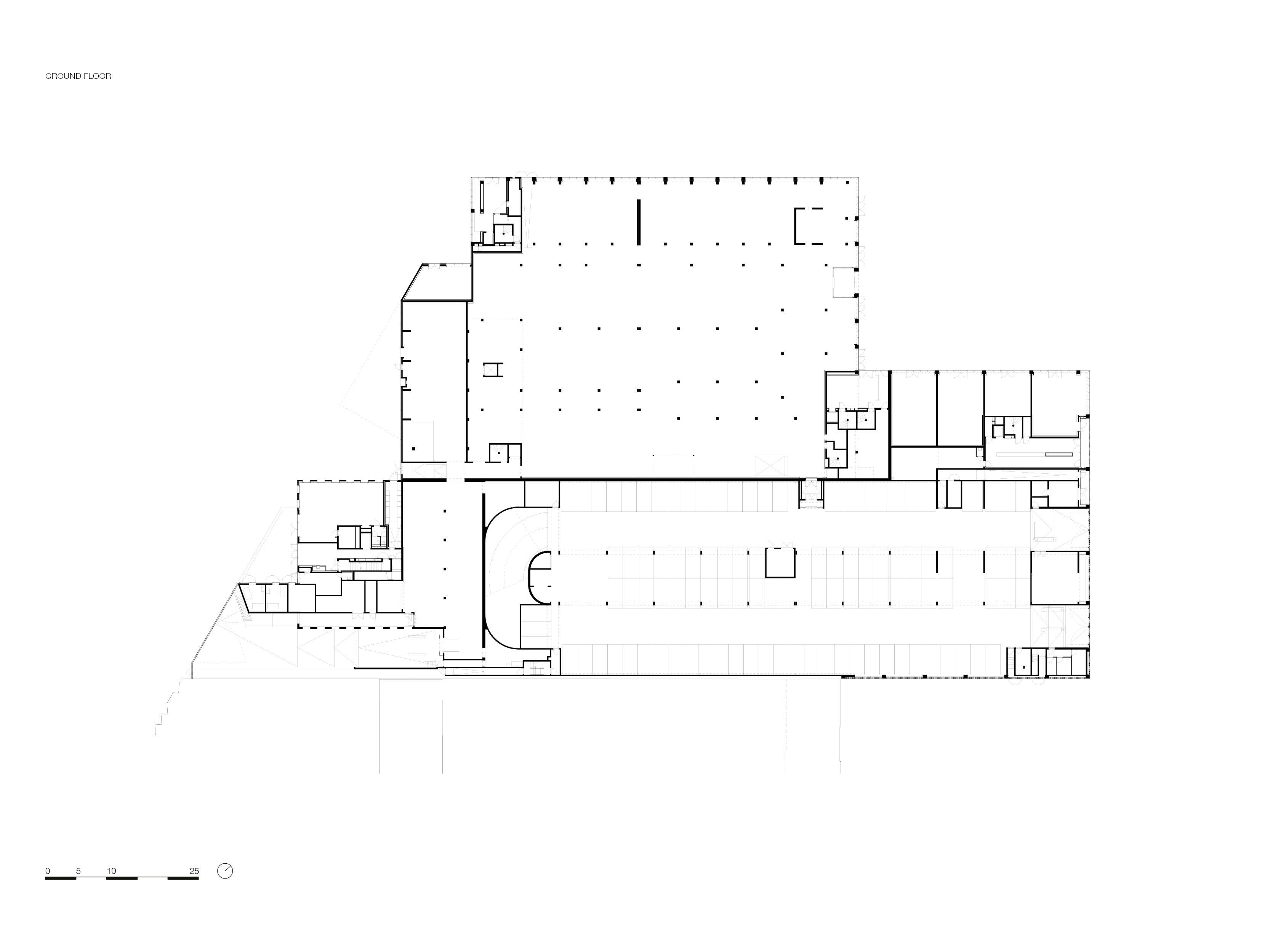
Bottière Chénaie is a compact mixed-use building nestled within the eponymous district in the north-eastern Nantes, encircled by major traffic infrastructures. The project proposes a balanced composition of volumes with simple massing, enriched by concrete post-and-beam facades that generate large openings and fully glazed corners. The building structure features a multifunctional plinth, composed of commercial spaces, a supermarket and a car park. Above this base rise two 5-storey residential blocks containing 172 apartments.

The larger housing volume, dedicated to market-rate housing, unfolds around a spacious courtyard planted with trees, where external walkways overlooking the green surroundings provide access to the dual aspect apartments. The second volume is dedicated to social housing apartments, positioned to benefit from a double orientation: a different typology of loggias and look outs towards the city. Lastly, to the south-west, the office block, organized around a central core, reinforces the volume juxtaposition and completes the new urban landscape.

Info

Location
Nantes, FR
Date
2012–2019
Size
17,200 sqm
Client
OCDL – Groupe Giboire
Team
Aimee Mackenzie, Ana Rivero Esteban, Christian Sluijmer, Cécile Sanchez, Dante Borgo, Dikkie Scipio, Elsa Marchal, Ismael Planelles Naya, Jan Teunis ten Kate, Joeri Spijkers, Julie Le Baud, Kees Kaan, Marc Coma, Marylène Gallon, Narine Gyulkhasyan, Paolo Faleschini, Renata Gilio, Sebastiaan Buitenhuis, Sebastian van Damme, Sophie Ize, Vincent Panhuysen, Wouter Langeveld, Yannick Signani, Yinghao Lin
Photography
Sebastian van Damme
General contractor
Angevin Entreprise Générale
Construction and financial advisor
AIA Ingenierie
W+E and structural engineer
AIA Ingenierie
Fire safety engineer
Socotec
MEP and acoustics advisor
SerdB - Groupe Gamba