Skip to content

B30

Location
The Hague, NL
Typology
Commercial
Date
2012–2017
Size
21,000 sqm

B30 (Bezuidenhoutseweg 30) in the centre of The Hague is an imposing structure with a distinct architectural character and a heritage listing. It was originally designed by Daniel E.C. Knuttel in 1917 as a ministry building, but significant changes were made to the building’s layout in 1994, undermining the foundations of its original spatial hierarchy. The existing building needed to be extensively renovated to house the Council for the Environment and Infrastructure, the Dutch Data Protection Authority and other independent planning bureaus under one roof. These unique users required a building that would be in line with the needs of a contemporary working environment.

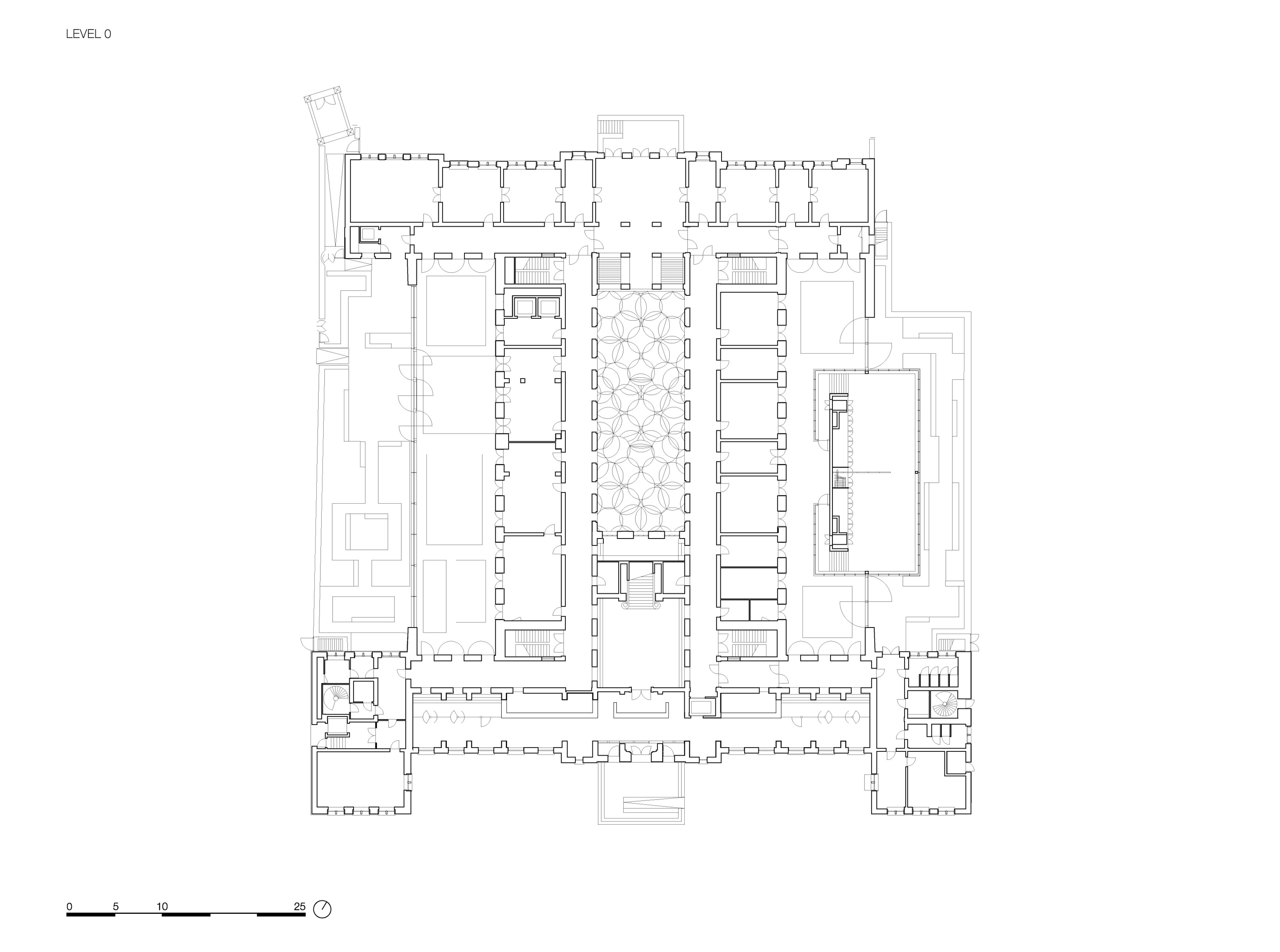
The closed hierarchical building was transformed into an open and inviting one through a clear spatial configuration and additive design. All passageways are aligned, creating long sightlines through the building, enhancing contact with the street, woods and gardens, and simplifying wayfinding. At the core of the building, a large atrium with a new mosaic floor gives a focus to the four upper floors, which house workspaces for various institutions.

B30 is now a space for contemporary ideas and research regarding government transparency, and this use is reflected in the new design. It is a spatial expression of a vision shared by all organisations that aids and inspires both debate and collaboration.

Info

Location
The Hague, NL
Date
2012–2017
Size
21,000 sqm
Client
Primary client: Rijksvastgoedbedrijf Direct client: Facilicom
Team
Christian Sluijmer, Cristina Gonzalo Cuairan, Dikkie Scipio, Giuseppe Mazzaglia, Hedwig van der Linden, Ismael Planelles Naya, Kees Kaan, Kevin Claus, Koen van Tienen, Loes Martens, Marija Mateljan, Marlon Jonkers, Maurizio Papa, Paolo Faleschini, Raluca Firicel, Sebastian van Damme, Timo Cardol, Tjerk de Boer, Vincent Panhuysen, Walter Hoogerwerf
Photography
Karin Borghouts, Sebastian van Damme
General contractor
Breijer Bouw & Installatie
Construction advisor
Pieters Bouwtechniek
Restoration advisor
Braaksma & Roos Architectenbureau
MEP engineer
Breijer Bouw & Installatie
Building physics, fire safety, acoustics engineer
Deerns
Financial advisor
RebelGroup
Lighting designer
Studio Rublek